Casa unifamiliar 188 m², nueva, Centar - Gulići, Poreč

€ 470.000
5+
188 m²
3+
No
Trastero

Nota

Anuncio actualizado el 02/05/2026
Descripción

This description has been translated automatically and may not be accurate

referencia: 1301_1110

K28

NEW HOUSES WITH SWIMMING POOL AROUND POREČ
New family houses with a swimming pool are located in the vicinity of Poreč approx. 11 km from the sea.
4 houses will be built with an attached yard; external approx. 500m2, internal approx. 400m2
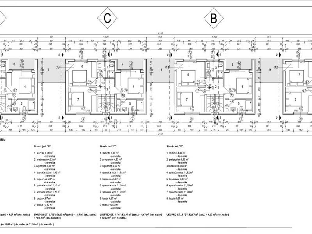
The ground floor contains: entrance porch, hall, toilet, storage room, pantry. Open-concept kitchen followed by dining room and living room with exits to a terrace with a canopy and a landscaped yard with a pool (8x4, if desired, the pool can be additionally covered as shown in the pictures in the ad).
Additional storage 7.49m2 on the outside (contains all houses except house D)
On the 1st floor there is an entrance hall and three bedrooms, one with a loggia, and one with its own bathroom and terrace.
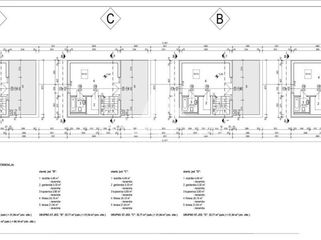
Practically used high attic where there is a dressing room, a bathroom and a room of 24.15 m2 that can be a bedroom and/or a fitness room, a relaxation area, a study room, a playroom and the like. It leads to a large terrace with a view of the landscape, where a jacuzzi can be positioned as desired.
Exterior house A = price: 490,000 + 30,000 FOR THE SWIMMING POOL IF THE BUYER WANTS IT
Internal B and C = price: 470,000 + 30,000 FOR THE POOL IF THE BUYER WANTS IT
-
- Each property has 3 parking spaces
- Underfloor heating with a heat pump is planned
- The possibility of a saltwater swimming pool
- The possibility of covering the pool
- The houses are sold according to the turnkey system

HOUSE B and C surfaces:
Closed area: 151.22 m2
Open space: 37.38m2
TOTAL: 188.6 M2

HOUSE A area:
Closed space: 143.73 m2
Open space: 26.86 m2
TOTAL: 170.59 M2
Características
Tipología
Casa unifamiliar
Contrato
Venta
Planta
1
Plantas del edificio
2
Ascensor
No
Superficie
188 m² | comercial 688 m²
Habitaciones
5+
Dormitorios
4
Baños
3+
Amueblado
No
Garaje, plazas de aparcamiento
1 en aparcamiento/garaje público
Calefacción
Individual, suelo radiante
Aire acondicionado
Frío/calor
Otras características
  • Piscina
Detalle superficie

Vivienda

Planta
1
Superficie
188,0 m²
Coeficiente
100%
Tipo de superficie
Principal
Superficie construida
188,0 m²

Terreno

Planta
Planta baja
Superficie
500,0 m²
Coeficiente
100%
Tipo de superficie
Anexos
Superficie construida
500,0 m²
Información del precio
Precio
€ 470.000
Precio del m²
683 €/m²
Eficiencia energética
  • Año de construcción

    2023
  • Estado

    Nuevo / En construcción
  • Calefacción

    Individual, suelo radiante
  • Aire acondicionado

    Frío/calor
Descubre otros ángulos del inmueble
+45
Opciones adicionales

Contactar con el anunciante

O