Casa unifamiliar 229 m², nueva, Centar - Gulići, Poreč

€ 780.000
4
229 m²
3+
No

Nota

Anuncio actualizado el 23/12/2025
Descripción

This description has been translated automatically and may not be accurate

referencia: 1500

K75
A modern villa with a beautiful design in the vicinity of Vrsar
At the end of a quiet Istrian town with only a few houses, the plan is to build this villa of unique design, the completion of which is planned for autumn/2024.
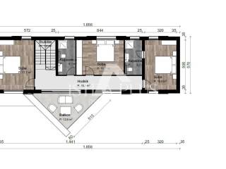
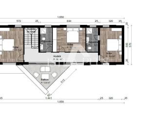
The total area of the house will be 229m2 on two floors. On the ground floor, there will be a guest toilet, pantry, living room with kitchen and dining room according to the open space concept, from which there is access to a covered terrace, a sundeck, a landscaped yard and a 38m2 swimming pool. There will also be one bedroom on the ground floor with its own bathroom and access to the yard.
There are three more bedrooms on the first floor, one of which is the master with its own bathroom, while the other two share a bathroom in the hallway, a hallway with access to the balcony.
Heating of the house will be made possible by underfloor heating and by means of air conditioners, which are also used for cooling.
Glass walls will be installed throughout the villa.
From the contents - the first shops and the sea are located approx. 7 km distance
There are plenty of restaurants in the area at a distance of about 4 km.
The beautiful Lim Fjord is also nearby!
Características
Tipología
Casa unifamiliar
Contrato
Venta
Planta
1
Ascensor
No
Superficie
229 m² | comercial 1.093 m²
Habitaciones
4
Dormitorios
4
Baños
3+
Amueblado
No
Garaje, plazas de aparcamiento
1 en aparcamiento/garaje público
Calefacción
Individual, suelo radiante
Aire acondicionado
Frío/calor
Otras características
  • Piscina
Detalle superficie

Vivienda

Planta
1
Superficie
229,0 m²
Coeficiente
100%
Tipo de superficie
Principal
Superficie construida
229,0 m²

Terreno

Planta
Planta baja
Superficie
864,0 m²
Coeficiente
100%
Tipo de superficie
Anexos
Superficie construida
864,0 m²
Información del precio
Precio
€ 780.000
Precio del m²
714 €/m²
Eficiencia energética
  • Año de construcción

    2024
  • Estado

    Nuevo / En construcción
  • Calefacción

    Individual, suelo radiante
  • Aire acondicionado

    Frío/calor
Opciones adicionales

Contactar con el anunciante

O