Casa unifamiliar 230 m², nueva, Labin

€ 877.000
5+
230 m²
3+
No
Trastero

Nota

Anuncio actualizado el 02/05/2026
Descripción

This description has been translated automatically and may not be accurate

referencia: 1685

K144
The villa is located in the quiet hinterland of Labin and offers privacy because it is secluded and surrounded by agricultural land.
The villa extends to the ground floor and the 1st floor.
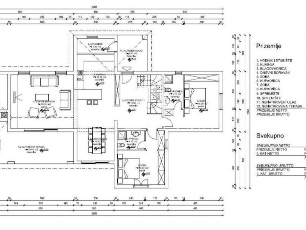
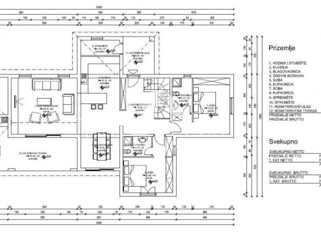
On the ground floor there is a hallway through which you enter the living room and dining room with an open space concept kitchen, through large panoramic doors you can access a covered terrace with a summer kitchen, a fireplace, and below there is a nice sunbathing area with a heated pool.
On the ground floor there are two bedrooms, each with its own bathroom, and one bedroom has direct access to the terrace, where there is a garden and a swimming pool.
On the ground floor there is also a storage room and a technical room where there is a central pellet stove.
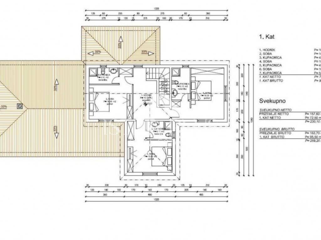
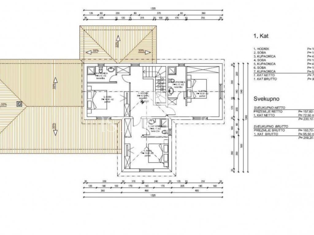
On the 1st floor there are three bedrooms, each with its own bathroom, and one bedroom has its own balcony.
The furniture is absolutely made of high quality oak and matches the style of the house.
On the large garden there is a children's playground, a beach volleyball court, and a small house that can serve as a small accommodation unit, a storage room or a tool room.
Hot water can be obtained through a solar system, electric heating or pellet heating, which enables a flexible and efficient supply.
Características
Tipología
Casa unifamiliar
Contrato
Venta
Planta
1
Plantas del edificio
2
Ascensor
No
Superficie
230 m² | comercial 4.437 m²
Habitaciones
5+
Dormitorios
5
Baños
3+
Amueblado
No
Garaje, plazas de aparcamiento
1 en aparcamiento/garaje público
Calefacción
Individual, de pellets
Aire acondicionado
Frío/calor
Otras características
  • Chimenea
  • Sistema de alarma
  • Instalación tv con antena parabólica
  • Piscina
Detalle superficie

Vivienda

Planta
1
Superficie
230,0 m²
Coeficiente
100%
Tipo de superficie
Principal
Superficie construida
230,0 m²

Terreno

Planta
Planta baja
Superficie
4.207,0 m²
Coeficiente
100%
Tipo de superficie
Anexos
Superficie construida
4.207,0 m²
Información del precio
Precio
€ 877.000
Precio del m²
198 €/m²
Eficiencia energética
  • Estado

    Nuevo / En construcción
  • Calefacción

    Individual, de pellets
  • Aire acondicionado

    Frío/calor
  • Certificación energética

    Exento
Descubre otros ángulos del inmueble
+41
Opciones adicionales

Contactar con el anunciante

O