Piso de cuatro habitaciones nuevo, planta baja, Centar - Gulići, Poreč

€ 540.400
4
152 m²
3+
1
No
Trastero

Nota

Anuncio actualizado el 23/12/2025
Descripción

This description has been translated automatically and may not be accurate

referencia: 1785

S157
Apartment with private pool and yard - Tar - Vabriga
The apartment is located in a quiet location in a newly built residential building with 4 apartments.
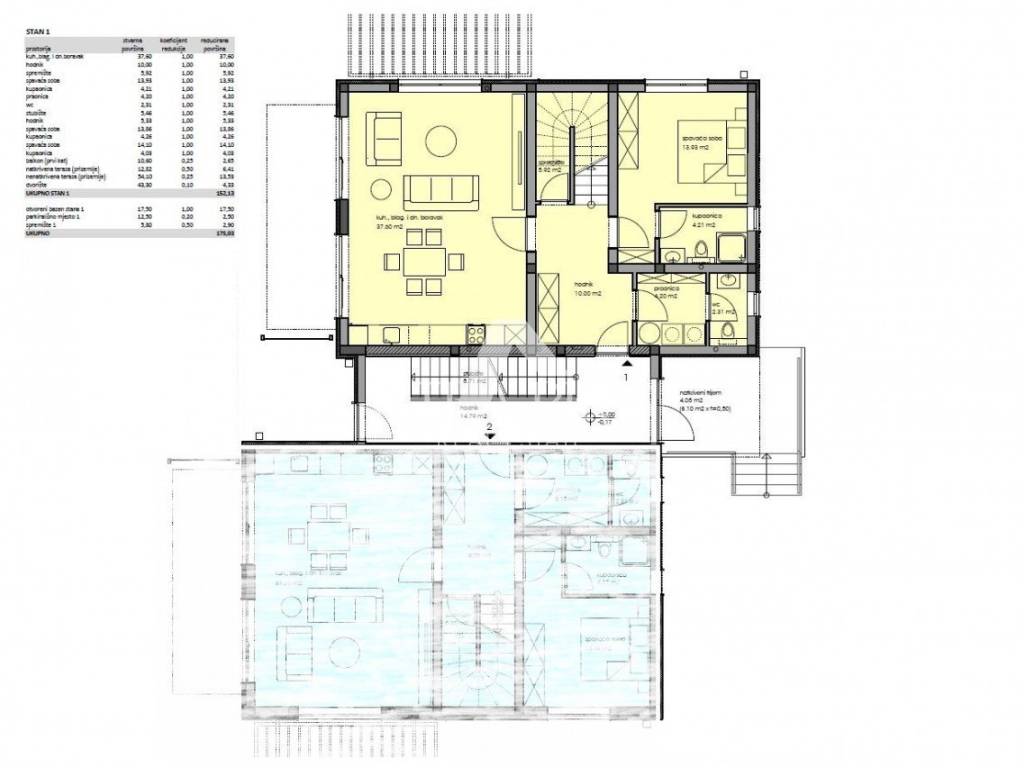
The two-story apartment consists of a ground floor and a first floor.
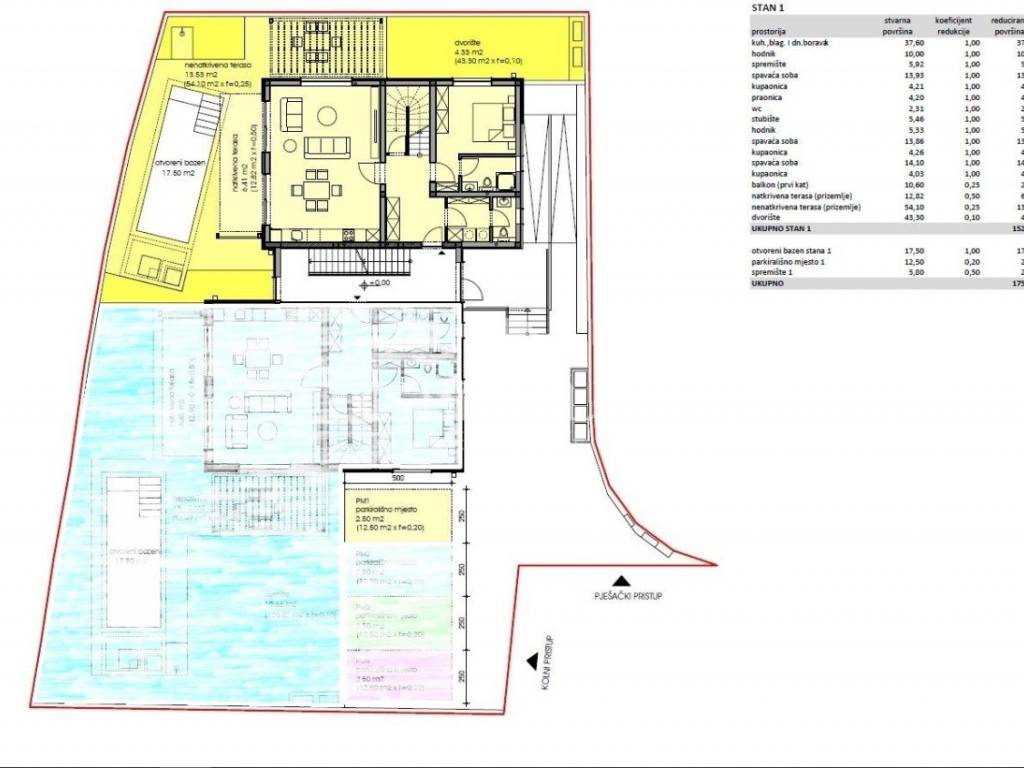
On the ground floor there is an entrance hall, a laundry room with a separate toilet, one bedroom with its own bathroom, a storage room under the stairs, a large living room with a kitchen and dining room, from which there is an exit to the terrace, which is partially covered with pergolas, and a sun deck with its own swimming pool.
In the corridor, stairs lead to the first floor.
On the first floor there is a hallway, two bedrooms, each with its own bathroom and both rooms have access to a common balcony that offers a wonderful view of the landscape and the sea.
There is underfloor heating in the living room and bathrooms and air conditioners in the bedrooms.
The apartment has one parking space in front of the building, and one more can be purchased for an additional fee.
In the basement of the building there is a storage room of 5.80 m2.
The construction is in the final phase, and the completion of the works is scheduled for 04/2024. years.
All necessary facilities are located near the apartment, school, kindergarten, playground, shops, post office, pharmacy.
Características
Tipología
Piso
Contrato
Venta
Planta
1
Ascensor
No
Superficie
152 m² | comercial 195 m²
Habitaciones
4
Dormitorios
3
Baños
3+
Amueblado
No
Garaje, plazas de aparcamiento
1 en aparcamiento/garaje público
Calefacción
Individual, suelo radiante
Aire acondicionado
Frío/calor
Otras características
  • Piscina
Detalle superficie

Vivienda

Planta
1
Superficie
152,0 m²
Coeficiente
100%
Tipo de superficie
Principal
Superficie construida
152,0 m²

Terreno

Planta
Planta baja
Superficie
43,0 m²
Coeficiente
100%
Tipo de superficie
Anexos
Superficie construida
43,0 m²
Información del precio
Precio
€ 540.400
Precio del m²
2.771 €/m²
Eficiencia energética
  • Año de construcción

    2024
  • Estado

    Nuevo / En construcción
  • Calefacción

    Individual, suelo radiante
  • Aire acondicionado

    Frío/calor
Descubre otros ángulos del inmueble
+16
Opciones adicionales

Contactar con el anunciante

O