Piso de tres habitaciones 131 m², Banjole, Medulin

€ 325.000
3
131 m²
2
Trastero

Nota

Anuncio actualizado el 03/05/2026
Descripción

This description has been translated automatically and may not be accurate

referencia: 3412

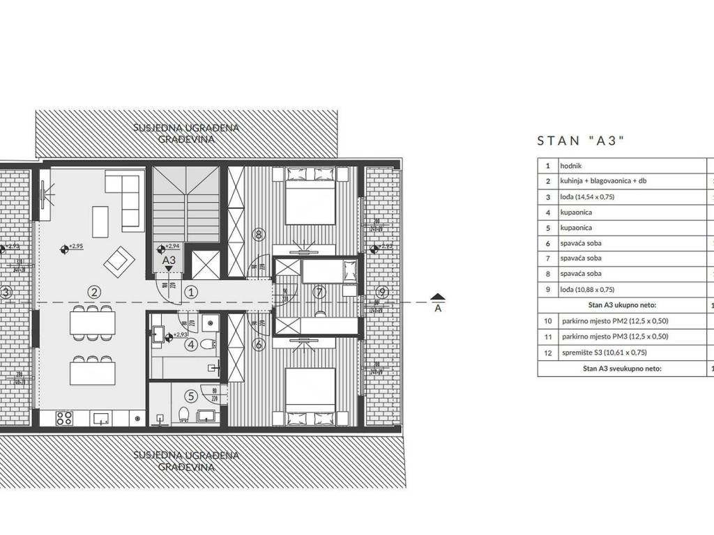
Spacious three-bedroom apartment in Banjole (Medulin), located on the first floor with a total area of 130.63 m, consists of an open-space living room, kitchen and dining area, three bedrooms (one with its own bathroom), additional bathroom, hallway, two terraces and a storage room, includes two parking spaces and a basement storage.The apartment has 3 air conditioners.PRICE REDUCED, GREAT OPPORTUNITY!
Características
Tipología
Piso
Contrato
Venta
Superficie
131 m²
Habitaciones
3
Dormitorios
3
Baños
2
Amueblado
No
Aire acondicionado
Frío/calor
Información del precio
Precio
€ 325.000
Precio del m²
2.481 €/m²
Eficiencia energética
  • Aire acondicionado

    Frío/calor
  • Certificación energética

    Exento
Descubre otros ángulos del inmueble
+23
Opciones adicionales

Contactar con el anunciante

O