Casa unifamiliar 183 m², nueva, Vodice

€ 1.000.000
3
183 m²
2
No
Balcón
Terraza

Nota

Anuncio actualizado el 05/12/2025
Descripción

This description has been translated automatically and may not be accurate

referencia: K2216

Luxury Smart Villa with Pool and Spacious Garden – Vodice

In a quiet location in Vodice, an exclusive modern villa with a total gross area of 183.93 m2 is for sale, featuring a private heated pool of 28 m2 (7 × 4 m) and a landscaped garden of approx. 340 m2. The property is of top quality, fully furnished, equipped, and ready to move in immediately.

The villa is a two-story house, functionally arranged and designed for maximum comfort.

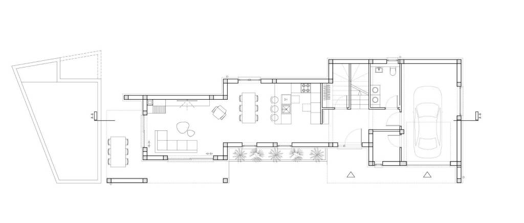
GROUND FLOOR

- Covered entrance


- Entrance hallway


- Wardrobe / storage room


- Spacious kitchen and dining room


- Modern living room with access to the terrace


- Guest WC


- Laundry room


- Garage


- Storage room


- Covered terrace


- Heated pool (separate heat pump, pH automation and electrolysis, massage jets)



Interior stairs clad with solid wood lead to the first floor.

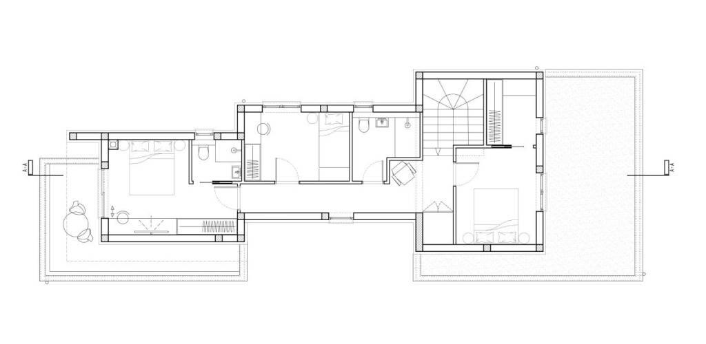
FIRST FLOOR

- Hallway


- Additional storage room


- Bedroom with walk-in closet


- Bathroom


- Bedroom 2


- Bedroom 3 with en-suite bathroom and access to covered and uncovered terrace



EQUIPMENT AND TECHNICAL FEATURES

- Fully furnished – high-end furniture, ready to move in


- DAN Küchen kitchen, Bosch household appliances, Liebherr refrigerator


- Mitsubishi air conditioning units in all rooms


- Underfloor heating + sanitary hot water via Mitsubishi heat pump


- Heated pool with automation (pH, electrolysis) and massage jets


- Automatic irrigation of all green areas


- Three-layer parquet flooring throughout the house (except bathrooms, garage, and storage rooms)


- Full-height doors (up to the ceiling)


- Video surveillance


- Central vacuum system


- Video intercom (ground floor + first floor) and key fob unlocking


- Satellite and TV antenna


- LED ceiling lighting


- Solid wood – interior stairs


- Complete smart home system – control of lighting, blinds, heating, and cooling via mobile phone



This villa represents the ideal combination of luxury, modern technology, and privacy – perfect for year-round living or high-category tourist rental.

Agency commision is 3% with VAT
Características
Tipología
Casa unifamiliar | Inmueble de lujo
Contrato
Venta
Ascensor
No
Superficie
183 m²
Habitaciones
3
Dormitorios
3
Baños
2
Balcón
Terraza
Calefacción
Individual, suelo radiante
Otras características
  • Aseo separado
  • Jardín privado y comunitario
  • Puerta blindada
  • Piscina
Información del precio
Precio
€ 1.000.000
Precio del m²
5.464 €/m²
Eficiencia energética

Consumo de energia

A+

Plano
Descubre otros ángulos del inmueble
+5
Opciones adicionales

Contactar con el anunciante

O