Piso de tres habitaciones nuevo, primera planta, Gajnice, Zagreb

€ 414.960
3
103 m²
3
1
Terraza

Nota

Anuncio actualizado el 28/04/2026
Descripción

referencia: 139

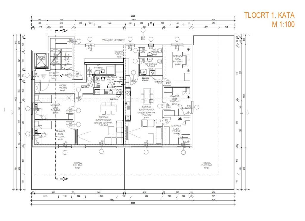
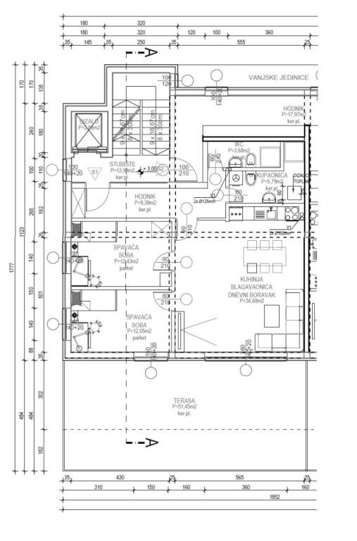
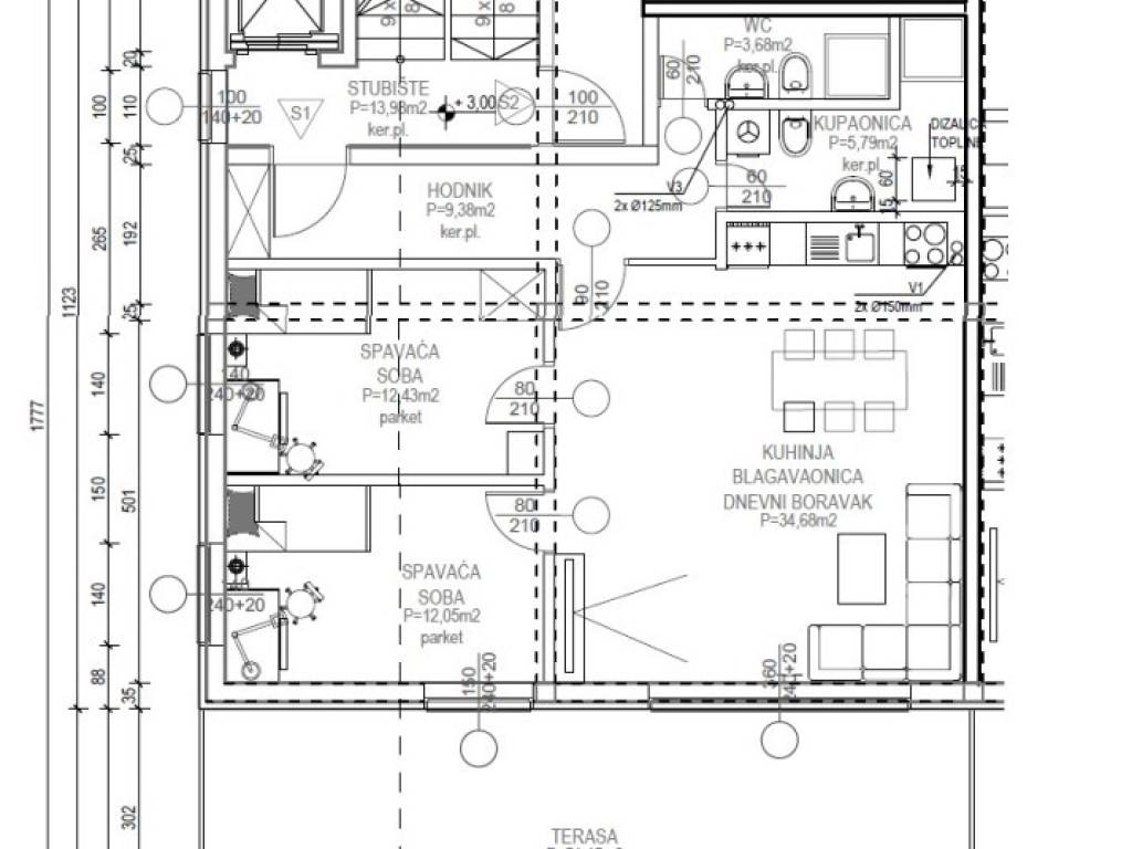
Prodajemo trosoban stanu u novogradnji na 1. katu zgrade, naselje Stenjevec - Gajnice
PRVI KAT
Stan S-1 sastoji se od; hodnik, dnevni boravak s kuhinjom i blagovaonicom, 2 sobe, kupaonica, zasebni WC, natkrivena terasa.
POVRŠINE:
- ulazni hodnik 9,38 m2
- dn. boravak, blagovaonica i kuhinja 34,68 m2
- kupaonica 5,79 m2
- WC 3,68 m2
- spavaća soba 12,43 m2
- spavaća soba 12,05 m2
- natkrivena terasa (51,45 m2) obračunski 25,73 m2
‍UKUPNA POVRŠINA STANA iznosi 103,74 m2
‍Obvezna kupnja garažnog parkirnog mjesta i spremišta.
Započela je gradnja stambene zgrade koja se gradi u naselju Stenjevec-Gajnice. Predviđen završetak gradnje i useljenje krajem 2026 godine.‍
Za sve detalje kao i za cijenu organiziramo sastanak sa investitorom.
NOVI PROJEKT 5 stanova
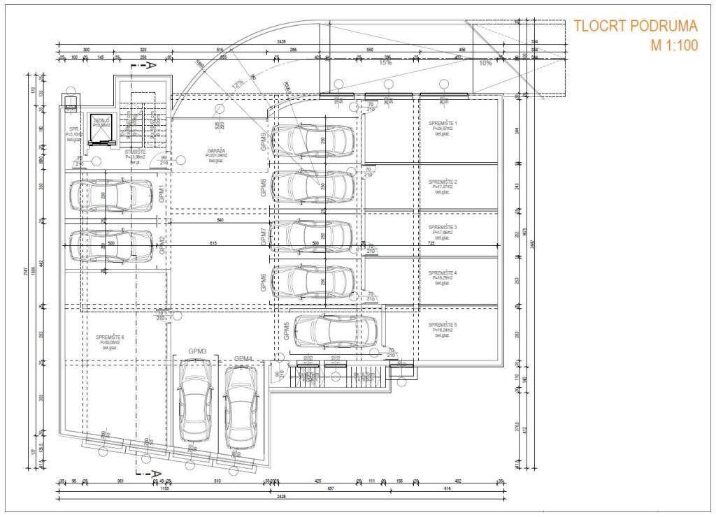
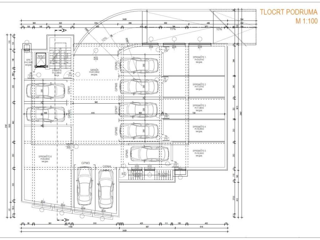
PODRUM: garažna parkirna mjesta i spremišta.
PRIZEMLJE: poslovni prostor i parkirna mjesta.
PRVI KAT; dva stana – trosoban i četverosoban.
DRUGI KAT: dva stana – trosoban i četverosoban.
TREĆI/UVUČENI KAT
DIZALO/LIFT od podruma do trećeg kata.
ŽELITE LI PRODATI SVOJ STAN?AGENCIJSKA USLUGA KOD PRODAJE STANA VEĆ OD 2%!Više od 28 godina iskustva u prodaji stanova!Brza i sigurna prodaja stana!Obratite nam se s povjerenjem!
Za ovu nekretninu kontaktirati agenta s položenim stručnim ispitom Domagoj MiškecMob: +385 91 3730 099 - Viber, WhatsAppTel: 01 3730 099, 01 3734 793E-mail: kontakt@euro-interijeri.hr, domagoj.miskec@euro-interijeri.hrwww.euro-interijeri.hrEuro-interijeri - agencija za poslovanje nekretninama.
Sjedište agencije/adresa: Ante Topić Mimare 3a, Zagreb.
Si deseas más información puedes hablar con Domagoj Miškec.
Características
Tipología
Piso
Contrato
Venta
Planta
1
Plantas del edificio
3
Ascensor
Superficie
103 m²
Habitaciones
3
Dormitorios
2
Baños
3
Terraza
Garaje, plazas de aparcamiento
2 en aparcamiento/garaje público
Calefacción
Individual, por aire, por bomba de calor
Aire acondicionado
Individual, frío/calor
Otras características
  • Puerta blindada
  • Videoportero
Detalle superficie

Vivienda

Planta
1
Superficie
103,0 m²
Coeficiente
100%
Tipo de superficie
Principal
Superficie construida
103,0 m²
Información del precio
Precio
€ 414.960
Precio del m²
4.029 €/m²
Desglose de los costes
Gastos de comunidad
Ningún gasto de comunidad
Eficiencia energética

Consumo de energia

A

Plano
Prodaja stanova Zagreb, Podsused - Vrapce - novogradnja - tlocrt stana S1
Prodaja stanova Zagreb, Podsused - Vrapce - novogradnja - tlocrt prvog kata
Prodaja stanova Zagreb, Podsused - Vrapce - novogradnja - tlocrt podruma
Prodaja stanova Zagreb, Podsused - Vrapce - novogradnja - presjek zgrade
Descubre otros ángulos del inmueble
+10
Opciones adicionales

Contactar con el anunciante

O