Casa unifamiliar 126 m², nueva, Centar, Luka, Finida, Umag

€ 699.000
3
126 m²
2
Balcón
Terraza
Amueblado

Nota

Anuncio actualizado el 04/02/2026
Descripción

This description has been translated automatically and may not be accurate

referencia: 43670

ISTRIA, UMAG - Eco-friendly villa near the sea

A modern villa is for sale located in a quiet green environment not far from Umag, suitable for buyers looking for privacy, quality eco-construction and proximity to the sea. Pula airport is 45 minutes away, Trieste 60 minutes, and Venice and Treviso less than two hours drive. Beaches are approximately 1500 meters away, while Parenzana, wineries, olive groves, restaurants, wellness and golf facilities are easily accessible.

The villa has a total area of 472 square meters, of which 202 square meters are under roof. The interior living area is 105 square meters, and additional spaces include 65 square meters of covered terraces, 16 square meters of covered balcony and 16 square meters of bicycle storage. The outdoor area consists of a private garden of 206 square meters, an entrance garden of 16 square meters, a private swimming pool of 22 square meters and two parking spaces with a total area of 26 square meters.

The construction is made of solid iQwood, a system that provides stable structural characteristics, energy efficiency, humidity regulation and a pleasant microclimate throughout the year. This eco-friendly construction is increasingly in demand on the European market precisely because of its sustainability, lower overhead costs and long-term value.

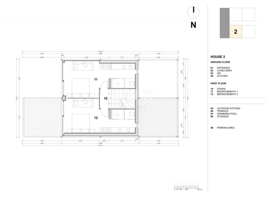
The ground floor of the villa consists of an open-space living room with large glass walls and direct access to the terrace, a kitchen connected to the dining room, a wardrobe and a guest toilet. The space is functionally designed, with excellent natural light and a direct connection to the exterior.

In the courtyard there is a private swimming pool, a covered terrace and a covered outdoor kitchen, which allows the use of the space during the warmer months. The private garden offers peace and discretion, while a bicycle storage room allows for practical storage of recreational equipment.

Upstairs there are two bedrooms, both with private bathrooms. Underfloor heating, air conditioning, electric blinds and large glass walls ensure a high level of comfort. One of the rooms also has access to a covered balcony.

This villa is a safe purchase for those who want a modern, sustainable home in Istria, whether as a second home, family residence or investment with excellent tourist rental potential. The private pool, garden and high standard of construction further set it apart on the market.

For more information, floor plans, visualizations and an appointment for a viewing, information is available upon request. Such properties find a buyer very quickly.

Dear clients, the agency commission is charged in accordance with the General Terms and Conditions:
www.dux-nekretnine.hr/opci-uvjeti-poslovanja

ID CODE: 43670

Evan Beaković
Agent s licencom
Mob: +385 91 54 833 54
Tel: +385 91 480 8808
E-mail: evan@dux-nekretnine.hr
www.dux-istra.com
Si deseas más información puedes hablar con Evan Beaković.
Características
Tipología
Casa unifamiliar
Contrato
Venta
Planta
1
Ascensor
Superficie
126 m² | comercial 598 m²
Habitaciones
3
Dormitorios
2
Baños
2
Amueblado
Balcón
Terraza
Aire acondicionado
Individual, frío/calor
Otras características
  • Piscina
Detalle superficie

Vivienda

Planta
1
Superficie
126,0 m²
Coeficiente
100%
Tipo de superficie
Principal
Superficie construida
126,0 m²

Terreno

Planta
Planta baja
Superficie
472,0 m²
Coeficiente
100%
Tipo de superficie
Anexos
Superficie construida
472,0 m²
Información del precio
Precio
€ 699.000
Precio del m²
1.169 €/m²
Eficiencia energética

Consumo de energia

A+

Descubre otros ángulos del inmueble
+13
Opciones adicionales

Contactar con el anunciante

O