Piso nuevo, planta baja, Centar, Opatija

€ 2.700.000
5
2 m²
3+
B

Nota

Anuncio actualizado el 26/11/2025
Descripción

This description has been translated automatically and may not be accurate

referencia: RE68353

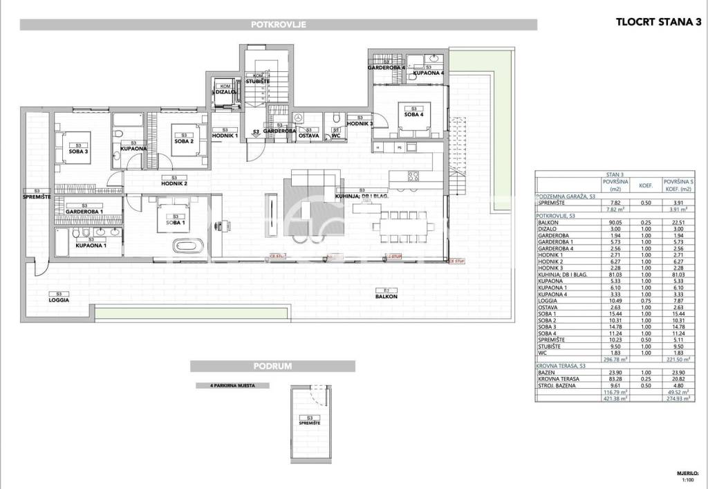
In the city of Opatija, often called the "pearl of the Adriatic". Opatija is known for its rich history, fascinating architecture and proximity to the crystal clear Adriatic Sea, providing its visitors with a unique holiday experience. In the project of starting construction, which includes 8 luxury apartments, on the 5th floor of the building is located a luxurious five-room apartment NKP 274.93 m2. The penthouse is located on the top floor. Given its large area, the feeling is unique for the future tenant, who can freely enjoy the privacy of their apartment, away from other views. With direct access from the elevator, we enter the apartment, with as many as 4 bedrooms, two of which have their own wardrobe and bathroom. The open space living room with kitchen and dining room provides access to a beautiful, covered terrace and private pool. The apartment also has a pantry, separate wardrobe, toilet, two bathrooms and a storage room. This apartment also offers four garage parking spaces and a storage room in the basement, which is extremely practical given the limited parking space in popular tourist destinations such as Opatija. Living in this apartment means enjoying a luxurious and comfortable living space, surrounded by beautiful nature and a spectacular sea view. Price excluding VAT.
Características
Tipología
Piso
Contrato
Venta
Planta
Planta baja
Ascensor
Superficie
2 m²
Habitaciones
5
Dormitorios
4
Baños
3+
Terraza
No
Calefacción
Central, suelo radiante, por bomba de calor
Otras características
  • Piscina
Información del precio
Precio
€ 2.700.000
Precio del m²
1.350.000 €/m²
Eficiencia energética
  • Estado

    Nuevo / En construcción
  • Calefacción

    Central, suelo radiante, por bomba de calor
  • Certificación energética

    Pendiente de certificación
Plano
s3a
Descubre otros ángulos del inmueble
+19
Opciones adicionales

Contactar con el anunciante

O