Piso de cuatro habitaciones nuevo, segunda planta, Kaštela

€ 370.000
4
2
2
No
Terraza

Nota

Anuncio actualizado el 26/11/2025
Descripción

This description has been translated automatically and may not be accurate

referencia: RE423785

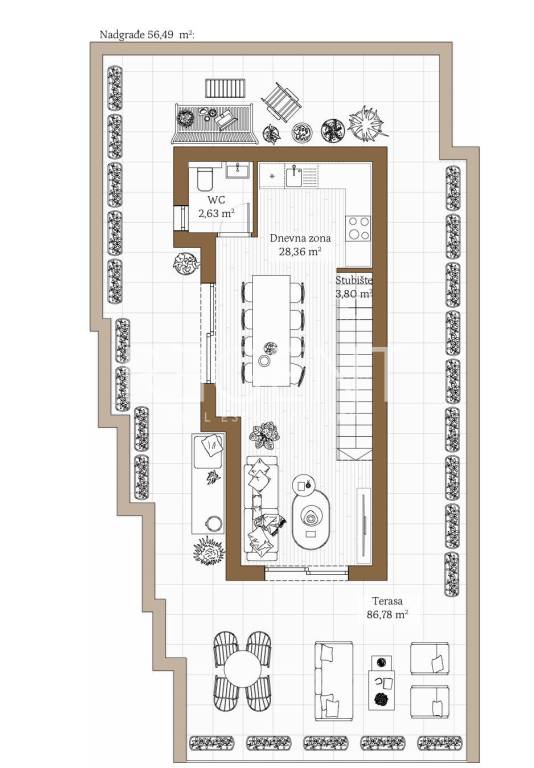
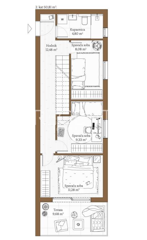
The two-story apartment is located on the second floor and the superstructure of a new building in Kaštel Lukšić. Thanks to its functional layout and two terraces, it is suitable for family life, but also as an investment for rent or tourism. The total net area of the apartment is 107.30 m2. On the lower floor there is a hallway, three bedrooms, a bathroom and a terrace of 9.68 m². An internal staircase leads to the upper floor (superstructure), where there is a spacious living area with a kitchen, dining room and living room, an additional toilet and a large terrace of 87 m² with a sea view. The apartment will be equipped with air conditioning and PVC carpentry. The floor coverings are planned in a combination of parquet and ceramics. The building is located in a quiet area between Kaštel Kambelovac and Kaštel Lukšić, below the main road. All important facilities are nearby: school, kindergarten, shops, ballet school, winery and public transport. The sea and the promenade are only a few minutes' drive away. The start of construction is planned for September 2025, and completion by the end of 2026. Payment can be agreed in stages, and there is also the possibility of buying with a loan with a minimum of 40% own participation. For more information and to arrange a viewing, feel free to contact us.
Características
Tipología
Piso
Contrato
Venta
Planta
2 planta
Plantas del edificio
2
Ascensor
No
Habitaciones
4
Dormitorios
3
Baños
2
Terraza
Calefacción
Central, por aire, alimentación eléctrica
Información del precio
Precio
€ 370.000
Eficiencia energética
  • Año de construcción

    2026
  • Estado

    Nuevo / En construcción
  • Calefacción

    Central, por aire, alimentación eléctrica
  • Certificación energética

    Exento
Plano
Descubre otros ángulos del inmueble
+3
Opciones adicionales

Contactar con el anunciante

O