Piso de tres habitaciones nuevo, primera planta, Jelsa

€ 254.000
3
2
1
No

Nota

Anuncio actualizado el 26/11/2025
Descripción

This description has been translated automatically and may not be accurate

referencia: RE555120

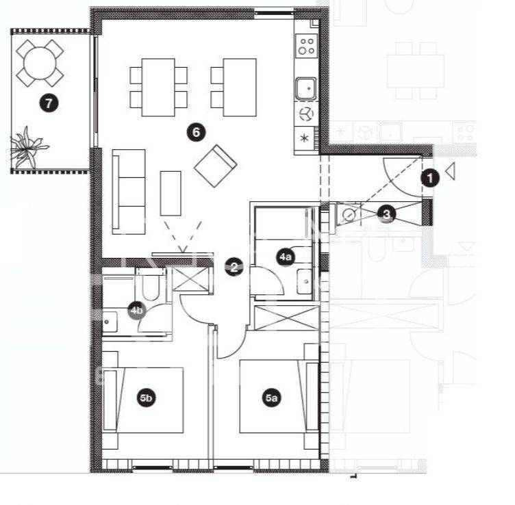
On the first floor of a new building in a quiet part of Vrboska, there is apartment S3. A functional two-bedroom apartment with a comfortable loggia, ideal for a family, couples, or as an investment for a vacation. The apartment consists of two bedrooms, a living room with a kitchen, two bathrooms, a hallway with a wardrobe, and a loggia. The building is being built according to modern standards, with an emphasis on construction quality and a modern architectural expression. Landscaped horticulture and the design of the terraces further contribute to the impression of exclusivity. The equipment highlights reinforced concrete load-bearing walls, an ETICS system with thermal insulation (min. 10 cm), triple-layer insulated glass, electric roller shutters, air conditioning, underfloor heating in the bathroom, and first-class ceramics. The project includes a total of 18 parking spaces, of which 10 are covered. Parking spaces are selected and paid for additionally, depending on the type. The building is located in a slightly elevated and quiet location, approximately 350 meters from the sea, outside the denser core of the settlement, but within a few minutes' walk of all important amenities – shops, restaurants, cafes, a marina, and promenades. Vrboska, located between Jelsa and Stari Grad, is known for its stone architecture, small bridges, and peaceful coves. Crystal clear sea, pine forests, and a natural cove make this place ideal for a relaxed island life. The completion of construction is planned by the summer of 2026, and VAT is included in the price. For more information and viewing, feel free to contact us.
Características
Tipología
Piso
Contrato
Venta
Planta
1 planta
Ascensor
No
Habitaciones
3
Dormitorios
2
Baños
2
Terraza
No
Calefacción
Central, por aire, alimentación eléctrica
Aire acondicionado
Individual, frío/calor
Información del precio
Precio
€ 254.000
Eficiencia energética
  • Año de construcción

    2025
  • Estado

    Nuevo / En construcción
  • Calefacción

    Central, por aire, alimentación eléctrica
  • Aire acondicionado

    Individual, frío/calor
Plano
Descubre otros ángulos del inmueble
+3
Opciones adicionales

Contactar con el anunciante

O