Piso de tres habitaciones nuevo, segunda planta, Omiš

€ 282.392
3
1
2
No

Nota

Anuncio actualizado el 26/11/2025
Descripción

This description has been translated automatically and may not be accurate

referencia: RE396668

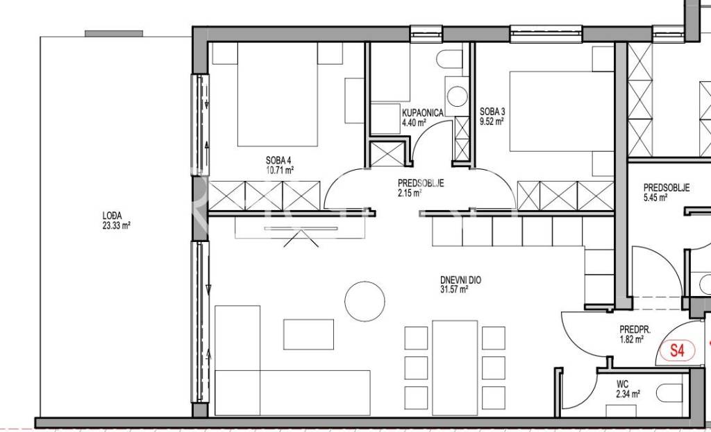
The apartment is located on the ground floor of the Strožanac Residence project, a modern new building in a quiet residential part of Strožanac. The apartment consists of: entrance hall 4.37 m², living area 27.18 m², hallway 3.47 m², bathroom 4.63 m², bedroom 12.52 m² and a loggia of 14.44 m² (calculated 3.61 m²), which totals 55.78 m² of net usable area. The apartment is designed for maximum space utilization, with modern construction standards and quality materials that ensure durability and comfort. The garage parking space costs €25,000. The planned completion of works is scheduled for the end of summer 2027. Strožanac represents an ideal location for a pleasant and quality life, where a peaceful residential environment and proximity to the sea are combined. The area is excellently connected to Split and the main roads, which allows easy access to business and cultural facilities of the city. At the same time, schools, shops and recreational areas are in the immediate vicinity, which provides all the prerequisites for a functional and modern life. For more information, as well as an appointment for a viewing, feel free to contact us!
Características
Tipología
Piso
Contrato
Venta
Planta
2 planta
Plantas del edificio
2
Ascensor
No
Habitaciones
3
Dormitorios
2
Baños
1
Terraza
No
Garaje, plazas de aparcamiento
1 en garaje privado, 1 en aparcamiento/garaje público
Información del precio
Precio
€ 282.392
Eficiencia energética
  • Estado

    Nuevo / En construcción
  • Certificación energética

    Exento
Plano
Opciones adicionales

Contactar con el anunciante

O