Piso de tres habitaciones nuevo, planta baja, Makarska

€ 333.535
3
3+
B

Nota

Anuncio actualizado el 26/11/2025
Descripción

This description has been translated automatically and may not be accurate

referencia: RE78086

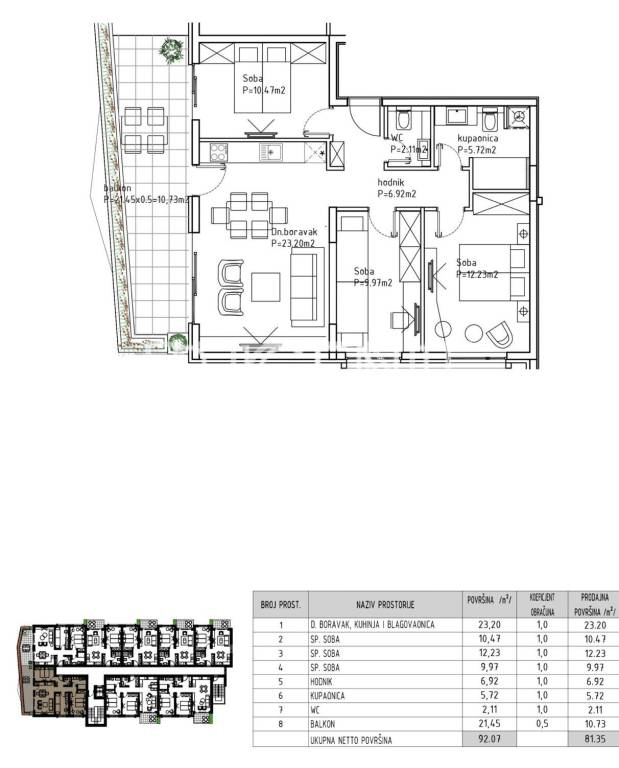
We are mediating the sale of a three-room apartment in a new building located in beautiful Makarska. The apartment is in an excellent location, close to the sea, shops and all the necessary facilities for daily life. The apartment area is 81.35 m2 and is located on the first floor of the building, and consists of a hallway with a total area of 6.92 m2, a bathroom with a total area of 5.72, an additional toilet with a total area of 2.11 m2, three bedrooms with a total area of 12.23 m2, 10.47 m2 and 9.97 m2, living room, kitchen with dining room with a total area of 23.20 m2, balcony with a total area of 10.73. The apartment also has a garage parking space which is not included in the price. The price of a garage space on the first floor is 25,000 euros, while on the second floor it is 22,500 euros. Due to its orientation, this apartment is filled with natural light and offers the possibility of enjoying the Mediterranean sun on the spacious terrace. The apartment is fully air-conditioned, and the bathrooms are covered with underfloor heating, which gives it additional comfort and convenience. This apartment is a perfect combination of comfort and aesthetics, providing you with a home where you will feel peaceful and comfortable, and due to its location, it is also ideal for tourist rental. Experience the vivid atmosphere of Makarska from the comfort of this modern and practical space!
Características
Tipología
Piso
Contrato
Venta
Planta
Planta baja
Ascensor
Habitaciones
3
Dormitorios
3
Baños
3+
Terraza
No
Calefacción
Central, por aire, alimentación eléctrica
Otras características
  • Piscina
Información del precio
Precio
€ 333.535
Eficiencia energética
  • Estado

    Nuevo / En construcción
  • Calefacción

    Central, por aire, alimentación eléctrica
  • Certificación energética

    Pendiente de certificación
Plano
S1- 1. KAT0000
Descubre otros ángulos del inmueble
+15
Opciones adicionales

Contactar con el anunciante

O