Piso de tres habitaciones nuevo, primera planta, Trogir

€ 207.936
3
1
1
No
Terraza

Nota

Anuncio actualizado el 26/11/2025
Descripción

This description has been translated automatically and may not be accurate

referencia: RE319568

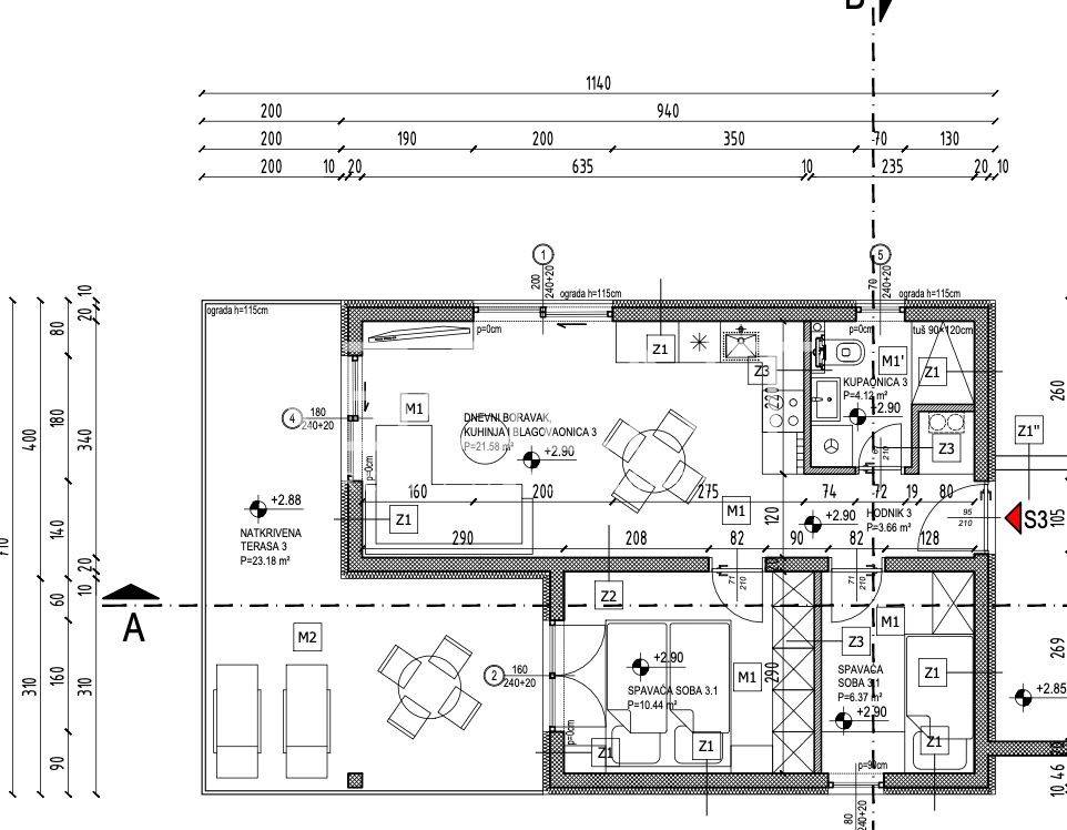
Three-room apartment located on the first floor of a modern residential building in a quiet and attractive location in Okrug Gornji. The property is ideal for family life, as well as a long-term investment. The apartment has a total net usable area of 57.76 m², and consists of a hallway, two bedrooms, a bathroom, a living room with a kitchen and dining room, and a covered terrace that provides additional space for enjoying the outdoors. Equipment and additional amenities: High-quality large-format tiles Electric shutters Large ALU fixed built-in walls flush with the floor Underfloor heating in the bathroom Daikin air conditioners in every room PVC joinery with quality insulation properties Interior doors without visible frames Large format ceramics The residential building is located in a quiet part of Okrug Gornji, close to the sea, nature and all necessary amenities, while the city center is easily accessible. An outdoor parking space is included in the price. The building is in the final stage of construction, ready for occupancy at the beginning of next year. The documentation is in order, and purchase is possible with phased payment. For additional information or to arrange a viewing, feel free to contact us.
Características
Tipología
Piso
Contrato
Venta
Planta
1 planta
Ascensor
No
Habitaciones
3
Dormitorios
2
Baños
1
Terraza
Garaje, plazas de aparcamiento
1 en aparcamiento/garaje público
Información del precio
Precio
€ 207.936
Eficiencia energética
  • Año de construcción

    2026
  • Estado

    Nuevo / En construcción
  • Certificación energética

    Exento
Plano
Descubre otros ángulos del inmueble
+9
Opciones adicionales

Contactar con el anunciante

O