Piso de dos habitaciones nuevo, primera planta, Mejaši - Sirobuja, Split

€ 298.485
2
68 m²
1
1
Balcón

Nota

Anuncio actualizado el 26/11/2025
Descripción

referencia: EK-857589

*EKSKLUZIVNA PRODAJA -- Rezervacije u tijeku *

Započela je gradnja novog projekta u Splitu, predio Sirobuja- Barutana.
Sastoji se od poslovnog prostora u prizemlju i 7 stambenih jedinica i podzemnom garažom.
Katnost objekata: Podrum, prizemlje i dva kata i nadgrađe (Po+P+2K+N)

Dokumentacija uredna, pravomoćna građevinska dozvola!
Početak radova: Započeli
Planirani završetak: kraj 2026/ početak 2027.

Sama lokacija objekta koja je na frenkvetnoj lokaciji, vrlo zanimljiv i šarmantan oblik zgrade,
te finalna estetika i bogata hortikultura oko samog objekta.

Odlična lokacija, u neposrednoj blizini centra i svih ostalih sadržaja potrebnih za lagodan život.
Zgradu će odlikovati sive i bijele boje, ali i moderni i luksuzni detalji.

-visoki standard gradnje
-višekomorna stolarija s troslojnim ostakljenjem
-ulazna protuprovalna + protupožarna vrata
-klimatizacijski sustav
-završne obloge keramike 1 klase i troslojnim parketom
-parlafon s videokamerom
-obvezna kupnja parking mjesta u garaži objekta**

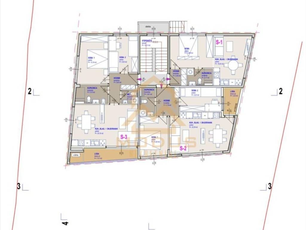
Stan S3 je položen na prvom katu objekta, sastoji se od dvije spavaće sobe, hodnika, kupaonice, wc-a, te dnevnog boravka, kuhinje i blagavaonice u povezanoj cjelini s izlazom na lođu.
Sastoji se od unutarnjeg prostora veličine 61.07 m2 + lođa 7.01 m2 = Ukupno 68.08 m2 (Obračunski: 66.33 m2)

CIJENA STANA: 298.485 €

KONTAKT: +385 95 1991 076 BRUNO

Modus nekretnine
Si deseas más información puedes hablar con Bruno Krolo.
Características
Tipología
Piso | Propiedad completa | Inmueble de lujo
Contrato
Venta | Inmueble con ingresos
Planta
1
Plantas del edificio
3
Superficie
68 m²
Habitaciones
2
Dormitorios
2
Cocina
Cocina abierta
Baños
1
Amueblado
No
Balcón
Garaje, plazas de aparcamiento
1 en garaje privado, 1 en aparcamiento/garaje público
Calefacción
Individual, por aire
Aire acondicionado
Individual, frío/calor
Otras características
  • Aseo separado
  • Puerta blindada
  • Videoportero
Detalle superficie

Vivienda

Planta
1
Superficie
68,0 m²
Coeficiente
100%
Tipo de superficie
Principal
Superficie construida
68,0 m²
Información del precio
Precio
€ 298.485
Precio del m²
4.389 €/m²
Eficiencia energética
  • Estado

    Nuevo / En construcción
  • Calefacción

    Individual, por aire
  • Aire acondicionado

    Individual, frío/calor
  • Certificación energética

    Inclasificable
Descubre otros ángulos del inmueble
+7
Opciones adicionales

Contactar con el anunciante

O