map icon

Piso nuevo, primera planta, Zagreb

Zagreb
€ 270.000
5
104 m²
1

Nota

Anuncio actualizado el 04/05/2026
Descripción

referencia: 280-1

Prodaja stanova u novogradnji u samom centru Sesveta.
Dojmljivi projekt, modernog dizajna i vrhunske kvalitete gradnje nalazi se centru Sesveta, okružen obiteljskim kućama.
Ono što ovaj projekt ističe od drugih je zavidna kvadratura vanjskog prostora. Prostrane terase i vrtovi u prizemlju, ovaj projekt izdvajaju od drugih.
Zgrada je armiranobetonska te ima 8 stanova. Čine ju prizemlje, 1. kat, 2. kat i uvučeni kat.
Na svakoj etaži se nalaze po dva stana. Zgrada ima lift marke Schindler i videonadzor. Svakom stanu pripada jedno vanjsko parkirno mjesto ( 12.50 m2) sa električnim priključkom te vanjsko montažno spremište sa strujom ( 2 m2). Na krovu je priprema za solarne panele po želji budućih vlasnika.
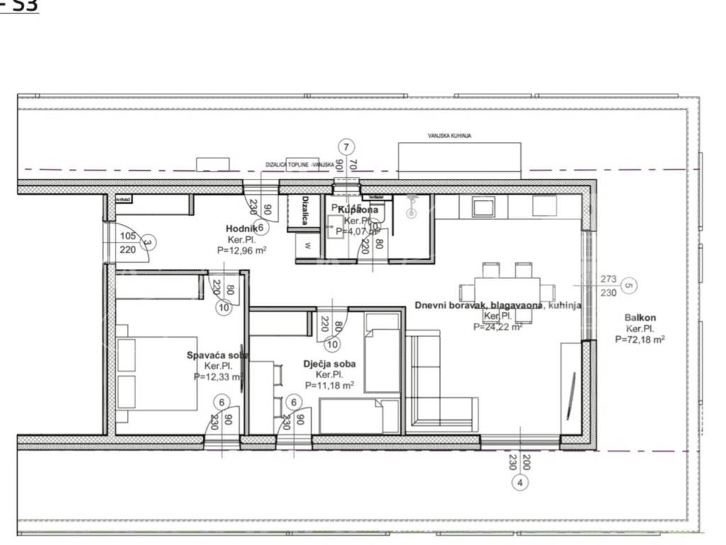
Stan oznake S3 nalazi se na prvome katu. Sveukupna kvadratura iznosi 104.05 m2 dok unutarnjeg stambenog prostora ima 64.76 m2 i čine ga: ulazni hodnik ( 12.89 m2), prostrani dnevni prostor ( dnevni boravak, blagovaona i kuhinja od 24.22 m2), kupaona ( 4 m2) te dvije spavaće sobe od kojih je jedna master soba ( 12.33 m2) i jedna dječja soba ( 11.18 m2). Stanu okružuje veliki natkriveni balkon ( 72.18 m2), savršen za druženje sa obitelji i prijateljima uz roštilj ( vanjska kuhinja) i sa lijepim pogledom na grad.
Blizina svih sadržaja. Udaljenosti: dječji vrtić 100m, crkva 400m, Kaufland 600m, dućan dječje igralište 250m, glazbena škola 160m, super Konzum 600m...
Idealna nekretnina za obitelj, mlade parove bez dece, starije osobe ali i kao investicija.
OPREMA:
-Marlex PVC stolarija s troslojnim IZO staklom
-protuprovalna vrata
-aluminijske električne rolete
-stiropor fasada debljine 15 cm
- keramičke pločice 1. klase (podno grijanje)
-svaka soba ima termostat
- klima uređaj u svakoj sobi
-priprema za ljetnu kuhinju na terasi
Završetak gradnje lipanj 2026.godine.
Agencijska provizija iznosi 2% + PDV.
Agent
Sonja Toš
+385916115606
M: sonja@mmi.hr
Si deseas más información puedes hablar con Sonja Strmečki Toš.
Características
Tipología
Piso
Contrato
Venta
Planta
1 planta
Superficie
104 m²
Habitaciones
5
Dormitorios
2
Información del precio
Precio
€ 270.000
Precio del m²
2.596 €/m²
Eficiencia energética
  • Estado

    Nuevo / En construcción
  • Certificación energética

    Inclasificable
Descubre otros ángulos del inmueble
+21
Opciones adicionales

Contactar con el anunciante

O