map icon

Maison jumelée / mitoyenne 290 m², Gračani, Zagreb

ZagrebGračani
€ 620 000
5+
290 m²
3
Balcon
Terrasse

Remarque

Annonce mise à jour le 03/12/2025
Description

référence: EK-1028649

Prodaja, kuća, Gračani, 4 etaže, 7 soba, garaža, vrt, 290 m2

Sastoji se od suterena, prizemlja, 1.kata i 2.kata.
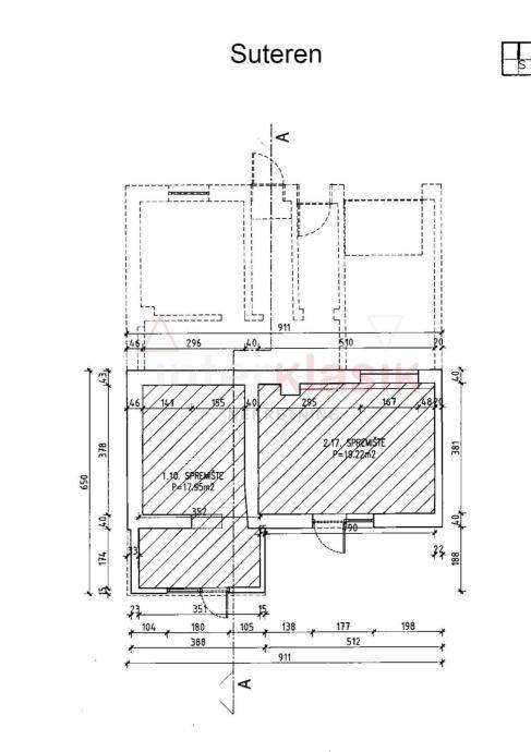
SUTEREN - spremište 1 (19,22 m2), spremište 2 (17,95 m2)

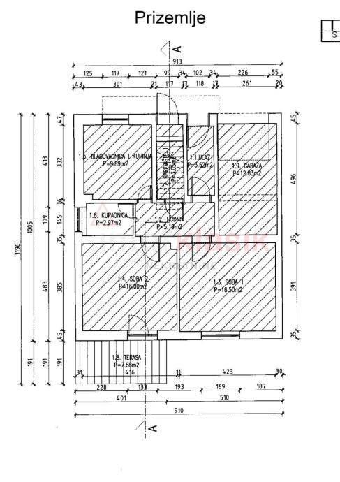
PRIZEMLJE - soba 1 (16,00 m2), soba 2 (16,50 m2), kuhinja i blagovaona (9,89 m2), kupaonica i WC (2,97 m2), hodnik (5,19 m2), ulazni prostor (3,62 m2), terasa (7,68 m2), spremište (3,05 m2), garaža (12,83 m2)

1. KAT - boravak + blagovaona (32,70 m2), soba 1 (9,58 m2), kuhinja (15,83 m2), kupaonica i WC (3,20 m2), hodnik (3,01 m2), stubište (4,50 m2), balkon (3,90 m2), lođa/balkon (6,67 m2)

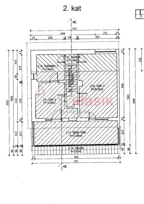
2. KAT - soba 1 (12,62 m2), soba 2 (26,20 m2), soba 3 (21,06 m2), kupaonica i WC (7,94 m2), stubišni prostor (6,42 m2), galerija (1,19 m2), balkon (7,97 m2)
Kući pripadaju i 3 uknjižena parkirališna mjesta, svaki podne površine 12,50 m2.

Nekretnina je etažirana na dvije stambene jedinice koje imaju zasebne ulaze, pa postoji mogućnost korištenja kuće kao cjeline ili kao 2 odvojena stana.
Sveukupna površina 2 sobnog donjeg stana u prizemlju iznosi 81,38 m2, od toga stambeni prostor 64,90 m2.
Sveukupna površina dvoetažnog gornjeg stana iznosu 207,80 m2, od toga stambeni prostor 162,82 m2.
Sveukupna površina cijele kuće iznosi 289,18 m2.
Površina vrta je 210,50 m2.
Grijanje - centralno plinsko etažno, električno podno grijanje u kupaonici.
Orijentacija - trostrana (sjever-jug-zapad), puno dnevnog svjetla u prostoru.

Kuća je u potpunosti uređena, odmah useljiva i nisu potrebna dodatna ulaganja.

LOKACIJA: izuzetno mirna (slijepa) ulica s obiljem zelenila u okruženju , na rubnom dijelu prema zelenom, nestambenom području, izolirana od gradske gužve, buke i stresa, a unatoč tome udaljena svega 5 minuta pješice od tramvajske stanice.

Vl.list bez tereta, etažirano, Rješenje o izvedenom stanju.

INTERKLASIK NEKRETNINE
Froudeova 7, Zagreb
KONTAKT : 098 171 0323 , 091 50 89720, 01 789 02 96
www.interklasik.hr
E-mail : info@interklasik.hr
Caractéristiques
Typologie
Maison jumelée / mitoyenne | Pleine propriété
Transaction
Vente
Étage
2
Étages du bâtiment
2
Superficie
290 m²
Chambres/pièces
5+
Chambres
6
Cuisine
Cuisine/salle-à-manger
Bains/douches
3
Balcon
Oui
Terrasse
Oui
Box, places stationnement
2 dans garage/box, 2 place(s) de parking
Chauffage
Collectif, avec radiateurs, alimenté au gaz
Climatisation
Autonome, froid/chaud
Autres caractéristiques
  • Cadres extérieurs double vitrage / PVC
Détail de la surface

Habitation

Étage
2
Superficie
290,0 m²
Coefficient
100%
Type de superficie
Habitable
Sup. commercial
290,0 m²
Informations sur les prix
Prix
€ 620 000
Prix au m²
2 138 €/m²
Efficacité énergétique

Consommation d'énergie

≥ 250 kWh/m² annéeB

Plan
31T
32T
33T
34T
35T
Découvrez chaque recoin de la propriété
+27
Options additionnelles

Contacter l'annonceur

Ou