Appartement 3 chambres Sukošan, Sukošan

€ 273 000
3
78 m²
1
1
Non
Balcon
Terrasse

Remarque

Annonce mise à jour le 17/04/2026
Description

This description has been translated automatically and may not be accurate

référence: 138-54

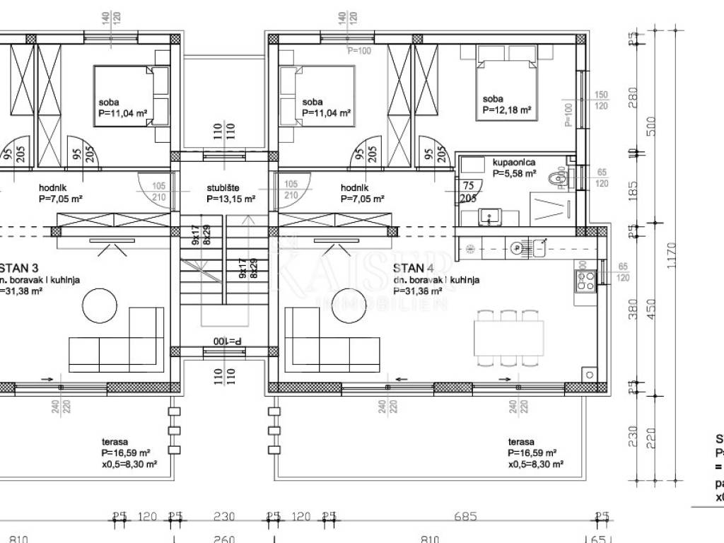
For sale is an apartment in a new building in Sukošan, only 200 meters from the sea and the beach. The building consists of a total of six apartments spread over two floors, and the completion of the works is planned for June 2026. The apartment is located on the first floor and has a total area of 78.03 m², of which the net area of the apartment is 75.53 m² and it has a terrace of 8.30 m² and a parking space of 2.50 m². The apartment also offers a view of the sea, which further contributes to its attractiveness. The apartment is modernly designed and consists of a spacious living room with kitchen and dining room of 31.38 m², two bedrooms of 12.18 m² and 11.04 m², a bathroom of 5.86 m², a hallway and a large terrace of 16.59 m² (area of 8.30 m²) which provides an ideal space for spending time outdoors. Special attention has been paid to the quality of construction and furnishing. The building is constructed of reinforced concrete with brick walls, with top-quality wood-aluminum joinery, and the flooring includes first-class Italian porcelain Marazzi and Mirage, and oak parquet in the bedrooms. The bathroom and living room have underfloor heating, while the air conditioning is provided by a Mitsubishi multi-split system. Additional value is provided by natural stone in the staircase and entrance to the building, Villeroy & Boch sanitary ware, security doors, a parking space paved with concrete blocks, and landscaped surroundings and horticulture. Sukošan is a quiet and attractive place located ten kilometers south of Zadar. It is known for the largest marina on the Adriatic - Dalmatia, numerous beautiful beaches, clear sea, traditional taverns and restaurants, but also excellent transport connections thanks to the proximity of the highway and airport. The Kornati, Krka and Paklenica national parks are also located in the vicinity, making this place perfect for a vacation, life or investment. The apartment in Sukošan represents a combination of modern architecture, top-quality equipment and an ideal location in the immediate vicinity of the sea, which makes it an excellent choice for anyone looking for a quality living space or a safe investment on the Adriatic. The price is not fixed, and it is possible to negotiate it. The agency commission for the buyer is 3% + VAT and is paid in the case of purchasing a property, upon conclusion of the first legal act. Contact us with confidence for more information and to arrange a viewing. Tel: +385915404646 Email: vedran@kaiser-immobilien.hr

ID CODE: 138-54

Vedran Vilović
Agent s licencom u posredovanju u prometu nekretnina
Mob: +385997031459, +385995677888
E-mail: vedran@kaiser-immobilien.hr
www.kaiser-immobilien.hr
Si vous voulez en savoir plus, vous pouvez parler à Vedran Vilović.
Caractéristiques
Typologie
Appartement
Transaction
Vente
Étage
1 étage
Étages du bâtiment
2
Ascenseur
Non
Superficie
78 m²
Chambres/pièces
3
Chambres
2
Bains/douches
1
Balcon
Oui
Terrasse
Oui
Box, places stationnement
1 place(s) de parking
Chauffage
Individuel, avec air
Climatisation
Autonome, froid/chaud
Informations sur les prix
Prix
€ 273 000
Prix au m²
3 500 €/m²
Efficacité énergétique
  • Année de construction

    2025
  • Chauffage

    Individuel, avec air
  • Climatisation

    Autonome, froid/chaud
  • Certification énergétique

    Non classifiable
Découvrez chaque recoin de la propriété
+13
Options additionnelles

Contacter l'annonceur

Ou