map icon

Appartement 3 chambres sous-sol, Zagreb

Zagreb
€ 350 000
3
55 m²
1
S

Remarque

Annonce mise à jour le 30/01/2026
Description

référence: 1358-1

Agencija Sky nekretnine predstavlja ekskluzivnu stambenu novogradnju s malim brojem stanova.

U ponudi je stan smješten u modernoj stambenoj zgradi s ukupno 5 stambenih jedinica, projektiranoj s naglaskom na kvalitetu, funkcionalnost i visoki standard stanovanja.

A0

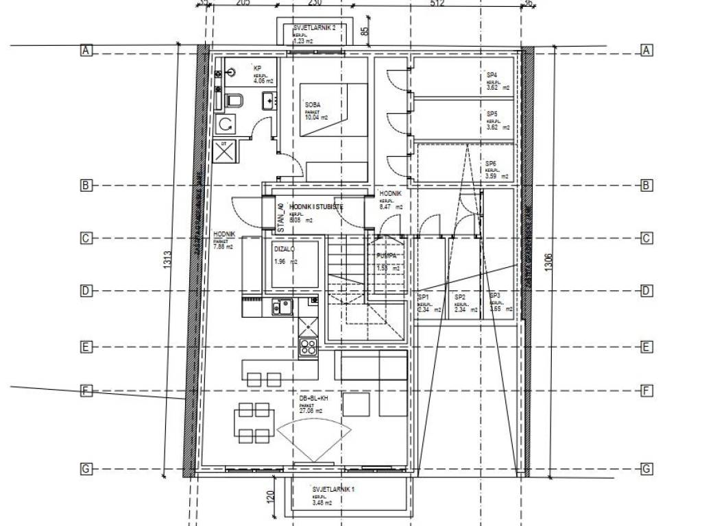
Stan se nalazi u suterenu zgrade te ima ukupnu prodajnu površinu od 50,80 m (ukupna neto površina poda iznosi 53,77 m), a sastoji se od ulaznog hodnika, open space dnevnog boravka s blagovaonicom i kuhinjom, spavaće sobe i kupaonice.

Stanu pripada i spremište (2-4 m2) te vanjsko parkirno mjesto (12,50 m2)

Zgrada je opremljena liftom koji omogućuje jednostavan pristup svim etažama od suterena do četvrtog, ujedno i završnog kata.

U dvorištu zgrade nalazi se parking lift te je uz stan obvezna kupnja jednog parkirnog mjesta.

Orijentacija stana je sjever i jug, što osigurava obilje prirodnog svjetla tijekom cijelog dana.

OPREMA I MATERIJALI :

Energetski razred: A
Grijanje: podno grijanje (dizalice topline)
Stolarija: troslojna antracit PVC stolarija
Podovi: parket i keramika
Protuprovalna vrata
Klima uređaji
Toplinska izolacija fasade i krova prema suvremenim standardima
Lift: da

AGENT ZA NEKRETNINU 095 563 5977

Kupac za navedenu nekretninu ne plaća agencijsku proviziju.
Za dodatne informacije i razgledavanje slobodno nas kontaktirajte radnim danom između 0917 h, te subotom od 09-12 h
Caractéristiques
Typologie
Appartement
Transaction
Vente
Étage
Sous-sol
Superficie
55 m²
Chambres/pièces
3
Chambres
1
Bains/douches
1
Informations sur les prix
Prix
€ 350 000
Prix au m²
6 364 €/m²
Efficacité énergétique
  • Année de construction

    2026
  • Certification énergétique

    Non classifiable
Découvrez chaque recoin de la propriété
+3
Options additionnelles

Contacter l'annonceur

Ou