Appartement 2 chambres Varaždinska, Sesvete sjever, Zagreb

Prix sur demande
2
62 m²
2
Balcon

Remarque

Annonce mise à jour le 03/03/2026
Description

référence: EUROVILLA-581729

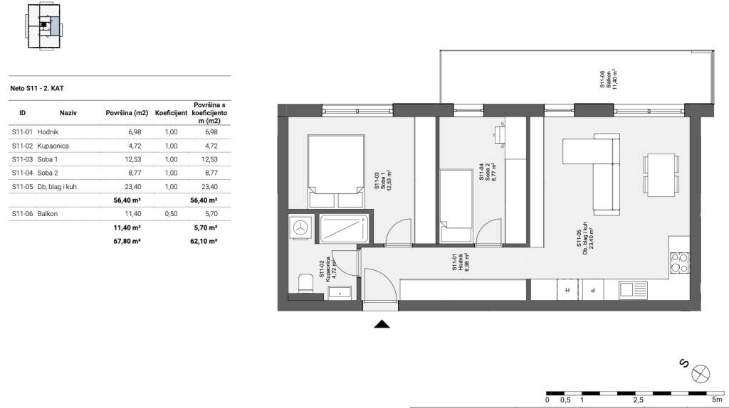
Zagreb, Sesvete, Popovec, prodaje se trosoban stan, zatvorene površine 56 m2. Dio je vrhunskog projekta s 19 stanova na četiri etaže u zgradi s liftom te garažnim mjestima u podzemoj etaži, na vrlo dobroj i prometno povezanoj lokaciji.Projekt Popovec odlikuje odlična projektiranost po pitanju tlocrta i iskoristivosti prostora uz iznimno funkcionalna spremišta na istim etažama gdje su stanovi. Gradnja je armiranobetonska s minimalno 15 cm termoizolacije, a od opreme se ističe podno grijanje, vrhunska stolarija, keramika i parketi prve klase, klimatizacija u svakoj sobi i sl. Stanovi imaju velike terase i otvore koji im donose dovoljno svjetla te ostavljaju dodatni dojam prostranosti.Stan S11 se nalazi na drugom katu te se sastoji od dnevnog prostora s kuhinjom i blagovaonicom, dvije spavaće sobe, kupaonice, ulaznog dijela, hodnika i balkona.Uz stan je obavezna kupnja spremišta (2,94 m2) po cijeni od 4.200 € te garažnog (18.000-21.000 €) ili vanjskog parkirnog mjesta (7.000 €).Lokacija je vrlo dobra, u brzorastućem naselju sa svega 5 minuta vožnje do središta Sesveta i manje od tri minute vožnje do autoceste. Također, budući produžetak Branimirove ulice će uvelike ubrzati dolazak u centralni dio Zagreba. Škola i vrtić su udaljeni manje od 300 metara što je dobar preduvjet za obiteljski život.Za ostala pitanja stojimo Vam na raspolaganju.... Više na eurovilla.hr, ID: 581729
Si vous voulez en savoir plus, vous pouvez parler à Antoni Širić.
Caractéristiques
Typologie
Appartement
Transaction
Vente
Étage
2
Superficie
62 m²
Chambres/pièces
2
Chambres
2
Balcon
Oui
Détail de la surface

Habitation

Étage
2
Superficie
62,1 m²
Coefficient
100%
Type de superficie
Habitable
Sup. commercial
62,1 m²
Informations sur les prix
Prix
Prix sur demande
Efficacité énergétique
  • État

    Nouveau / En construction
  • Certification énergétique

    Exempt
Plan
Découvrez chaque recoin de la propriété
+3
Options additionnelles

Contacter l'annonceur