Appartement 3 chambres 69 m², Ježdovec, Zagreb

€ 193 844
3
69 m²
1

Remarque

Annonce mise à jour le 16/02/2026
Description

référence: 173

PRODAJA, JEŽDOVEC, PROJEKT 3 STANA U IZGRADNJI, USELJENJE 4/2027
Projekt u fazi ishođenja građevinske dozvole, objekt sa tri stana, dva u prizemlju s vrtom i stan na prvom katu s velikom terasom i vrtom, svakom stanu pripadaju 2 parkirna mjesta.
Do ishođenja građevinske dozvole primaju se rezervacije stanova uz uplatu 5.000 eura.
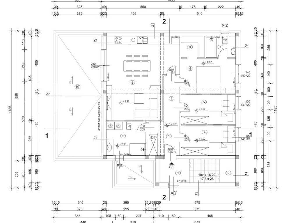
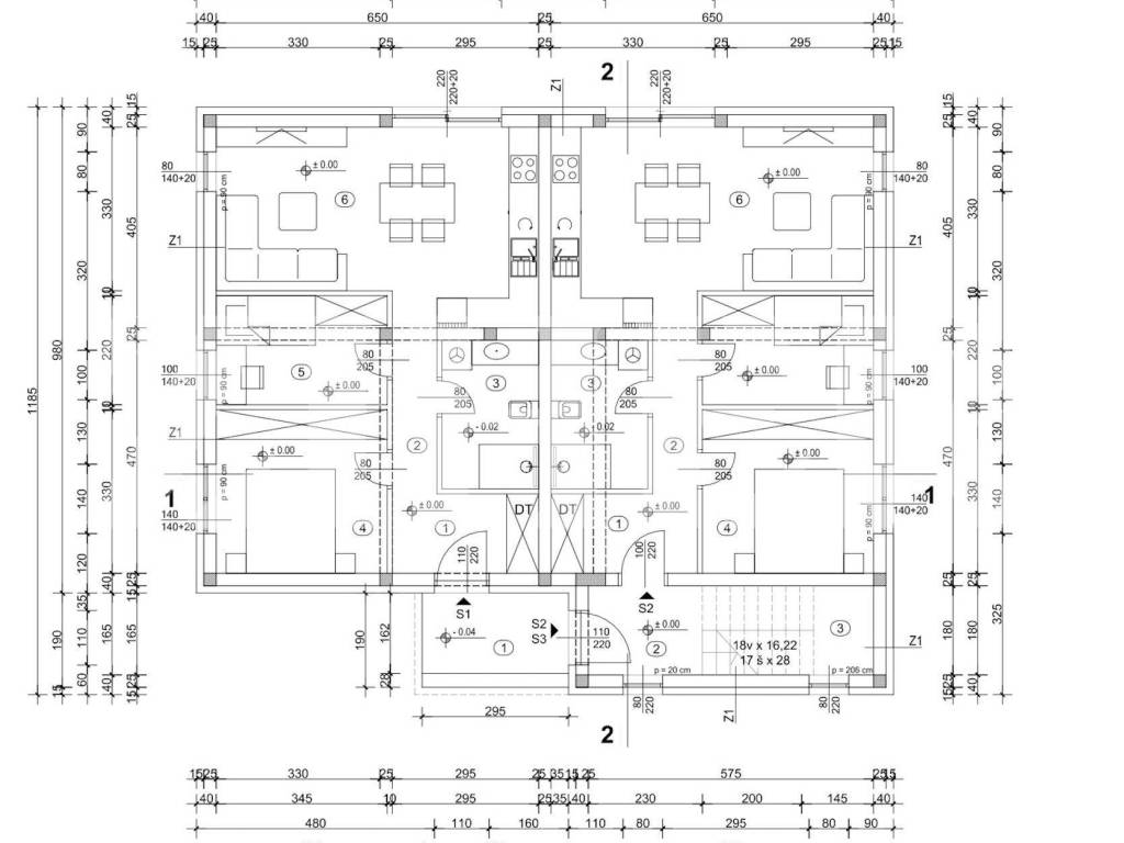
PRIZEMLJE :
S1 - Dnevni boravak s kuhinjom i blagavaonicom, dvije spavaće sobe, kupaonica, ukupne površine 56,52 m2 + vrt 88 m2 + 2 parkirna mjesta = 199.388 eura
S2 - Dnevni boravak s kuhinjom i blagavaonicom, dvije spavaće sobe, kupaonica, ukupne površine 56,52 m2 + vrt 68 m2 + 2 parkirna mjesta = 193.844 eura
PRVI KAT :
S3 - Dnevni boravak s kuhinjom i blagavaonicom, master spavaća soba s kupaonicom i garderobom, još dvije spavaće sobe, druga kupaonica, ukupne površine 83 m2 + terasa 30 m2 + vrt 45 m2 + 2 parkirna mjesta = 252.590 eura
Za sve informacije nazovite 098/359876
ZIHER
Agencija za posredovanje u prometu nekretninama
Caractéristiques
Typologie
Appartement
Transaction
Vente
Étages du bâtiment
1
Superficie
69 m²
Chambres/pièces
3
Chambres
2
Bains/douches
1
Informations sur les prix
Prix
€ 193 844
Prix au m²
2 809 €/m²
Détails des coûts
Charges de copropriété
Aucun frais de copropriété
Efficacité énergétique
  • Année de construction

    2025
  • Certification énergétique

    Non classifiable
Découvrez chaque recoin de la propriété
+15
Options additionnelles

Contacter l'annonceur

Ou