Maison individuelle Brezovica, Brezovica sjever, Zagreb

€ 284 788
3
116 m²

Remarque

Annonce mise à jour le 03/03/2026
Description

référence: EUROVILLA-219244

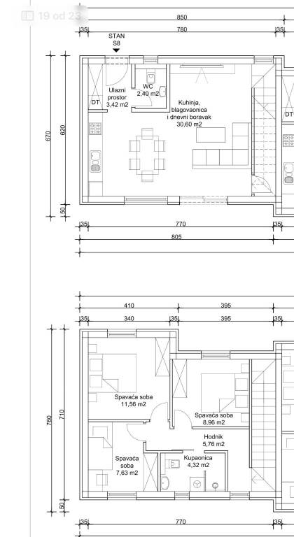
Na mirnoj lokaciji u Brezovici nalazi se novi projekt luksuznih kuća u nizu. U projektu je ukupno osam kuća, a svaka ima vlastiti vrt i pripadajuća parkirna mjesta, što pruža idealne uvjete za ugodan obiteljski život u zelenom okruženju.Kuća K1 ima stambenu površinu od 84,21 m², dok ukupna obračunska površina iznosi 116,24 m². Pripada joj vrt veličine 111,65 m² te ukupno četiri vanjska parkirna mjesta površine 61,13 m².Prizemlje ukupne površine 40,47 m² sastoji se od ulaznog prostora površine 3,42 m², sanitarnog čvora veličine 2,40 m², spremišta od 4,05 m² te velikog dnevnog boravka s kuhinjom i blagovaonicom veličine 30,60 m². Iz dnevnog dijela omogućen je izlaz na terasu i vrt.Na katu, ukupne površine 43,74 m², nalazi se stubište i hodnik veličine 11,27 m² iz kojeg se pristupa trima spavaćim sobama. Površine soba iznose 8,96 m², 11,56 m² i 7,63 m². Na katu se također nalazi kupaonica površine 4,32 m².Kuće se izvode zidanom konstrukcijom, s knauf pregradnim zidovima i termo fasadom od stiropora debljine 10 cm. Ugrađena je PVC stolarija s troslojnim staklom te roletama na struju. Grijanje je predviđeno putem dizalice topline s podnim grijanjem u cijeloj kući, dok je u dnevnom boravku ugrađen inverter klima uređaj. Kupaonice su opremljene keramikom prve klase, dok je u ostatku kuće predviđen parket. U fazi izgradnje ostavljena je mogućnost odabira podnih obloga u vrijednosti do 20 €/m².Planirani početak izgradnje je u ožujku 2026. godine, a završetak radova predviđen je u svibnju 2027. godine.Moguća je kupnja putem kredita.Lokacija je izvrsno povezana te u blizini nudi sve ključne sadržaje poput škole, vrtića, trgovine i javnog prijevoza.Za sve dodatne informacije stojimo na raspolaganju.... Više na eurovilla.hr, ID: 219244
Si vous voulez en savoir plus, vous pouvez parler à Nina Martinović.
Caractéristiques
Typologie
Maison individuelle
Transaction
Vente
Étage
Rez-de-chaussée
Superficie
116 m²
Chambres/pièces
3
Chambres
3
Détail de la surface

Habitation

Étage
Rez-de-chaussée
Superficie
116,2 m²
Coefficient
100%
Type de superficie
Habitable
Sup. commercial
116,2 m²
Informations sur les prix
Prix
€ 284 788
Prix au m²
2 455 €/m²
Plan
Découvrez chaque recoin de la propriété
+11
Options additionnelles

Contacter l'annonceur

Ou