map icon

Appartement 4 chambres excellent état, deuxième étage, Mašićeva - Dobri dol, Zagreb

ZagrebMašićeva - Dobri dol
€ 390 000
4
107 m²
1
2
Meublé

Remarque

Annonce mise à jour le 04/05/2026
Description

This description has been translated automatically and may not be accurate

référence: 14361-1

www.biliskov.com ID: 14361
Zagreb, Maksimir
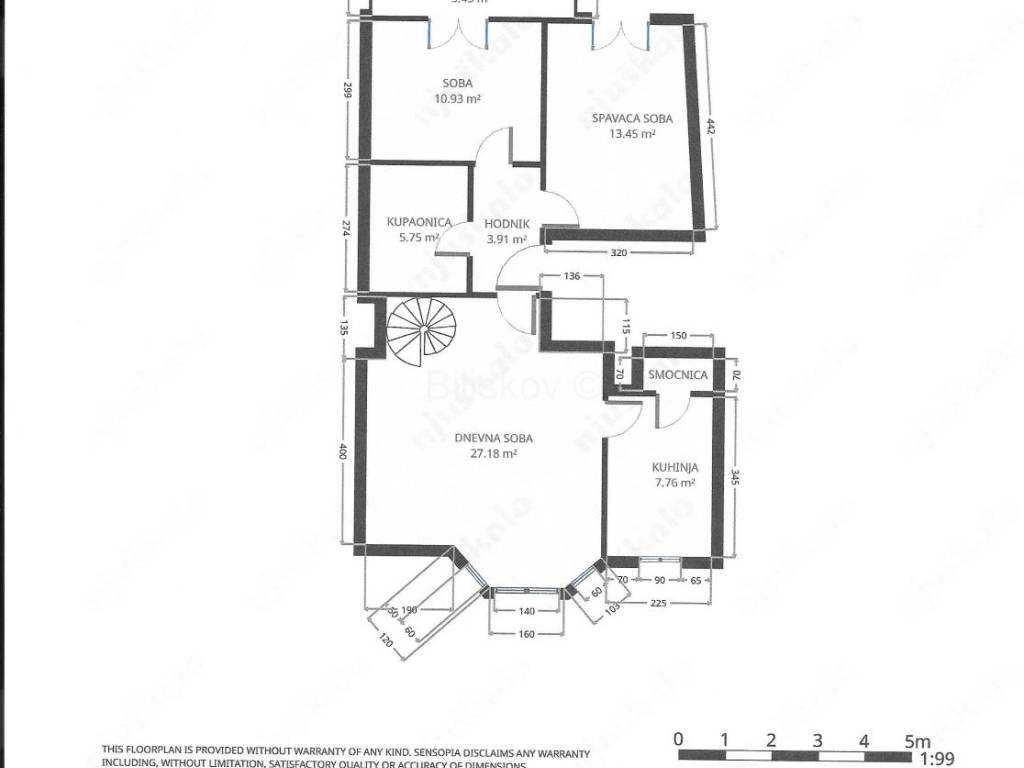
A beautiful four-room apartment of 107 m2 on the second floor of a building built in 1997.
The building has a total of two floors.
The apartment consists of an entrance hall, a large living room with a dining room and a kitchen, two bedrooms with access to a balcony, a bathroom and a gallery that currently serves as an office with a toilet, and can be converted into a bedroom.
Excellent micro-location and proximity to all important facilities (Merkur, Petrova Bolnica).
Along with the apartment, it is possible to buy a garage and a decorated tavern of 85 m2, which is located in the basement of the same building, price 170.000
EC: C
Orientation: East-West
Heating: Floor gas/air conditioning
Purchase price: 330,000
https://360.biliskov.hr/virtual-tour/14361/index.html
The brokerage fee for the buyer is 2% + VAT of the achieved purchase price.
Si vous voulez en savoir plus, vous pouvez parler à Emilija Živičnjak.
Caractéristiques
Typologie
Appartement
Transaction
Vente
Étage
2 étage
Superficie
107 m²
Chambres/pièces
4
Bains/douches
1
Meublé
Oui
Chauffage
Collectif, alimenté au gaz
Climatisation
Centralisé, froid/chaud
Informations sur les prix
Prix
€ 390 000
Prix au m²
3 645 €/m²
Efficacité énergétique
  • Année de construction

    1997
  • État

    Excellent / Rénové
  • Chauffage

    Collectif, alimenté au gaz
  • Climatisation

    Centralisé, froid/chaud
Découvrez chaque recoin de la propriété
+20
Options additionnelles

Contacter l'annonceur

Ou