Maison individuelle 495 m², Sukošan

Prix sur demande
5+
495 m²
3+
Oui

Remarque

Annonce mise à jour le 01/05/2026
Description

This description has been translated automatically and may not be accurate

référence: 14183-1

www.biliskov.com ID: 14183
Sukošan-first row to the sea
Detached luxury villa of 495m2, built in 2023, a few meters from the sea. The villa is located in an attractive location in Sukošan, a few minutes away from Zadar. The interior and courtyard of the villa exude luxury, and it is furnished and decorated down to the last detail.
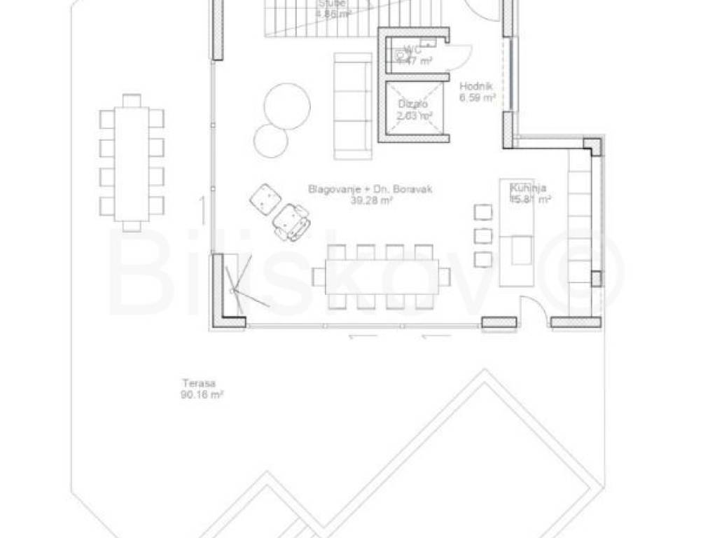
The villa consists of a ground floor measuring 70.04 m2 in which there is a kitchen, dining room, living room, toilet and a large open space with covered terraces measuring 90 m2.
The yard is dominated by a heated swimming pool of 45 m2, so it can be enjoyed from early spring to late autumn.
On the first floor there are 3 bedrooms, each with its own bathroom and access to the terrace, a total of 120 m2.
On the second floor, there is a bedroom with a bathroom, and a Wellness oasis for relaxation, also with access to a 105 m2 terrace.
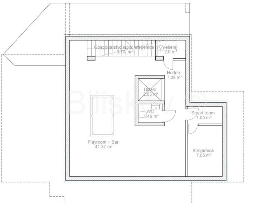
The basement consists of a playroom, a bar, a laundry room, and a toilet, with a total area of 72 m2. Access to each floor is facilitated by an elevator.
Parking is available at the entrance of the villa.
The villa is designed in detail so that the future owners have a complete feeling of relaxation and enjoyment in their own home, with wonderful views of the green environment and the sea.
Due to its attractive location, modern and exceptional decoration, this villa is not only an ideal place for a luxurious vacation and relaxation, but also a great opportunity to rent in tourism, which would achieve a significant annual return on investment.
If you were to imagine heaven on Earth, it would undoubtedly be this property. Combined with nature in symbiosis, they become one, which gives the impression of minimal fusion and tranquility, something we all strive for.
The villa is intended for pleasure, peace and the result that returns is abundance, in every aspect.

Orientation: East-West-North-South
Heating: Heat pump
EC: A+
Price: on request
Agency fee for the buyer: 2% + VAT
Si vous voulez en savoir plus, vous pouvez parler à Jasna Biliškov Barun.
Caractéristiques
Typologie
Maison individuelle | Propriété de luxe
Transaction
Vente
Étage
Rez-de-chaussée
Ascenseur
Oui
Superficie
495 m²
Chambres/pièces
5+
Bains/douches
3+
Autres caractéristiques
  • Piscine
Informations sur les prix
Prix
Prix sur demande
Efficacité énergétique
  • Année de construction

    2023
  • Certification énergétique

    Non classifiable
Découvrez chaque recoin de la propriété
+26
Options additionnelles

Contacter l'annonceur