Appartement 2 chambres Varaždinska, Sesvete sjever, Zagreb

€ 227 000
2
78 m²
3
Balcon

Remarque

Annonce mise à jour le 03/03/2026
Description

référence: EUROVILLA-255549

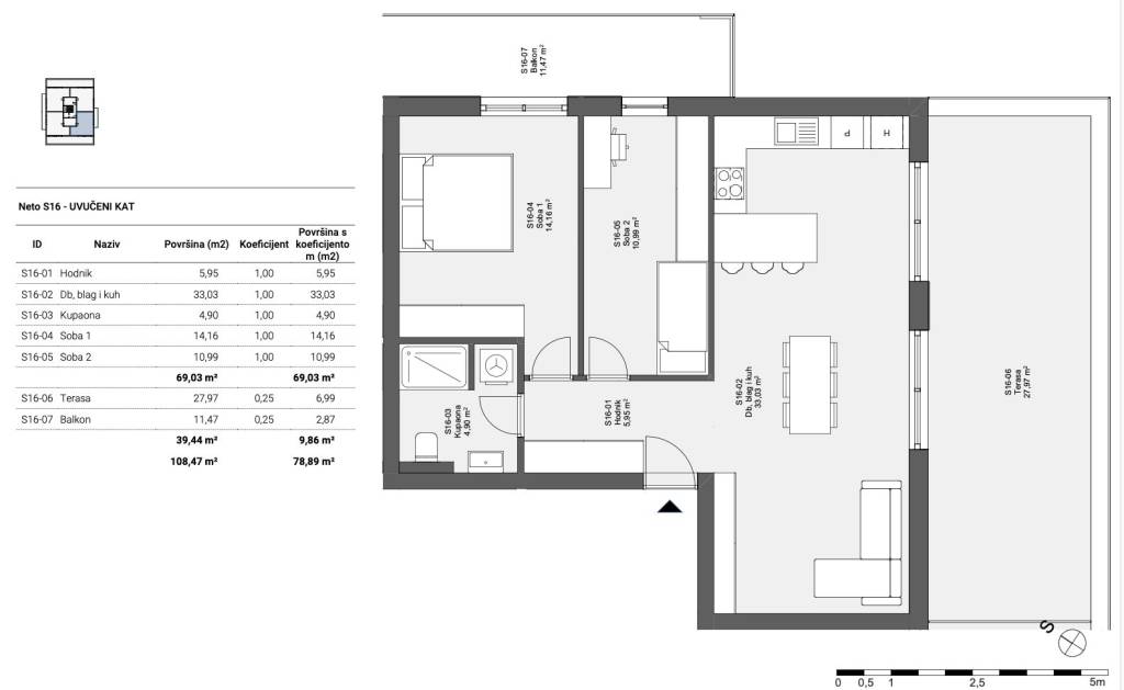
Zagreb, Sesvete, Popovec, prodaje se trosoban stan, zatvorene površine 69 m2. Dio je vrhunskog projekta s 19 stanova na četiri etaže u zgradi s liftom te garažnim mjestima u podzemoj etaži, na vrlo dobroj i prometno povezanoj lokaciji.Projekt Popovec odlikuje odlična projektiranost po pitanju tlocrta i iskoristivosti prostora uz iznimno funkcionalna spremišta na istim etažama gdje su stanovi. Gradnja je armiranobetonska s minimalno 15 cm termoizolacije, a od opreme se ističe podno grijanje, vrhunska stolarija, keramika i parketi prve klase, klimatizacija u svakoj sobi i sl. Stanovi imaju velike terase i otvore koji im donose dovoljno svjetla te ostavljaju dodatni dojam prostranosti.Stan S16 se nalazi na drugom katu te se sastoji od dnevnog prostora s kuhinjom i blagovaonicom, dvije spavaće sobe, kupaonice, ulaznog dijela, hodnika, terase i balkona.Uz stan je obavezna kupnja spremišta (3,18 m2) po cijeni od 4.500 € te garažnog (18.000-21.000 €) ili vanjskog parkirnog mjesta (7.000 €).Lokacija je vrlo dobra, u brzorastućem naselju sa svega 5 minuta vožnje do središta Sesveta i manje od tri minute vožnje do autoceste. Također, budući produžetak Branimirove ulice će uvelike ubrzati dolazak u centralni dio Zagreba. Škola i vrtić su udaljeni manje od 300 metara što je dobar preduvjet za obiteljski život.Za ostala pitanja stojimo Vam na raspolaganju.... Više na eurovilla.hr, ID: 255549
Si vous voulez en savoir plus, vous pouvez parler à Antoni Širić.
Caractéristiques
Typologie
Penthouse
Transaction
Vente
Étage
3
Superficie
78 m²
Chambres/pièces
2
Chambres
2
Balcon
Oui
Détail de la surface

Habitation

Étage
3
Superficie
78,3 m²
Coefficient
100%
Type de superficie
Habitable
Sup. commercial
78,3 m²
Informations sur les prix
Prix
€ 227 000
Prix au m²
2 910 €/m²
Efficacité énergétique
  • État

    Nouveau / En construction
  • Certification énergétique

    Exempt
Plan
Découvrez chaque recoin de la propriété
+3
Options additionnelles

Contacter l'annonceur

Ou