Bilocale Sukošan, San Cassiano

€ 525.000
2
91 m²
1
2

Nota

Annuncio aggiornato il 22/01/2026
Descrizione

This description has been translated automatically and may not be accurate

riferimento: 728

A luxury apartment with a roof terrace and a garage is for sale in Sukošan, Zadar County.

This elegant one-bedroom apartment in a new high-quality building is a rarity on the market, with a roof terrace, a garage and refined details that place it at the very top of the Adriatic offer. The property is located in a quiet part of Sukošan. It meets high aesthetic and functional standards and is intended for buyers looking for a sophisticated living space in the immediate vicinity of the sea.

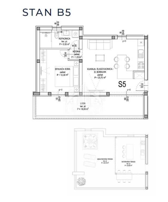
The apartment marked B5, with a total living area of 60.60 m2, consists of a living area with a kitchen, dining room and living room, one bedroom, bathroom with toilet and a loggia.
The spacious living room with large glass walls, from the renowned manufacturer REHAU with ALU roller shutters on electric lifts, opens onto the loggia, giving the impression of a living space that does not end with walls.

The interior has been carefully designed to provide maximum comfort and functionality. The apartment comes partially furnished, including a fully equipped kitchen with Bosch appliances, as well as an elegant garden/terrace set with a cassette awning – ready to move in or rent without additional investment. Multi-layer first-class parquet is installed in the living area and bedroom. The bathroom is equipped with large-format porcelain ceramics, with minimal joints for a clean, luxurious look. LAUFEN sanitary ware and HANSGROHE fittings ensure a high level of design and functionality, as well as a monolithic cistern with automatic LED lighting on a motion sensor.
Heating and cooling is provided by Mitsubishi air conditioning with inverter technology in all rooms, while underfloor heating is additionally installed throughout the apartment. The safety of future tenants has been improved by the installation of KOLNOA burglar and fire doors and an audio-video intercom.

A special premium atmosphere is added to this apartment by the 65.10 m2 roof terrace, which offers panoramic views of all four sides of the world. To complete the experience, it comes equipped with an outdoor summer kitchen, with all the necessary appliances, a television, a bar, chairs, and everything is covered by a pergola. In the uncovered part of the roof terrace there is a hot tub (jacuzzi) and a sun lounger.

The building has a built-in KONE elevator with carbon details, and the price includes a parking space in a garage paved with ceramic tiles. The entire building was built according to the highest construction standards. The building was built with POROTHERM blocks with a STO facade system that contributes to excellent thermal insulation, high vapor permeability and moisture resistance, and is extremely durable and resistant to UV rays and cracking. Parts of the facade and the internal staircase are covered with Roman travertine stone, which creates a sense of authenticity, silence and durability. The hand-crafted finish of each piece further emphasizes the connection with the space and Mediterranean tradition.

During construction and decoration, special attention is paid to detail. The advantage of buying this apartment is that it can be moved in immediately, as well as that the buyer does NOT pay real estate sales tax.

The location is unbeatable - just a few minutes' walk to the sea and the Dalmacija marina, close to all key amenities. The proximity to Zadar and excellent traffic connections further emphasize the practicality of this exclusive address.
This property is ideal for clients looking for a luxurious second home, an elegant vacation space or a secure investment in the premium rental segment.

ID CODE: 728

Antonio Gabre
Agent s licencom
Mob: +385 91 344 7899
E-mail: antonio@lavicci-nekretnine.hr
www.lavicci-nekretnine.hr

Lavicci Nekretnine
Voditelj ureda
Mob: +385 91 344 7899
E-mail: info@lavicci-nekretnine.hr
www.lavicci-nekretnine.hr
Caratteristiche
Tipologia
Appartamento
Contratto
Vendita
Piano
2 piano
Piani edificio
2
Ascensore
Superficie
91 m²
Locali
2
Camere da letto
1
Bagni
1
Balcone
No
Terrazzo
No
Box, posti auto
1 posto auto
Riscaldamento
Autonomo, ad aria
Climatizzazione
Autonomo, freddo/caldo
Altre caratteristiche
  • Porta blindata
  • VideoCitofono
Informazioni sul prezzo
Prezzo
€ 525.000
Prezzo al m²
5.769 €/m²
Efficienza energetica

Consumo di energia

A+

Planimetria
Scopri ogni angolo dell'immobile
+20
Opzioni aggiuntive

Contatta l'inserzionista

Oppure