Quadrilocale Sukošan, San Cassiano

€ 559.900
4
88 m²
2
1
Balcone

Nota

Annuncio aggiornato il 22/01/2026
Descrizione

This description has been translated automatically and may not be accurate

riferimento: 651

SUKOŠAN, ZADAR – LUXURY THREE-BEDROOM APARTMENT WITH SEA VIEW - 1st floor

For sale is a modern three-bedroom apartment located on the first floor of a luxury new building, first row to the sea in Sukošan.

The apartment has a total net living area of ​​88.00 m², while the total gross area is 105.24 m².

The location offers a peaceful seaside environment, ideal for year-round living or a luxurious vacation.

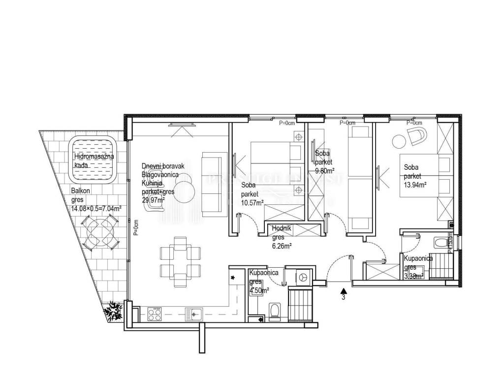
Layout and area of ​​rooms:
Hallway – 6.26 m²
Bathroom 1 – 3.38 m²
Bathroom 2 – 4.50 m²
Living room, kitchen and dining room – 29.97 m²
Bedroom 1 – 13.94 m²
Bedroom 2 – 9.80 m²
Bedroom 3 – 10.57 m²
Balcony – 14.08 m²
Outdoor parking space – 12.74 m²

Additional information:
The building will be built to the highest standards, with top-notch equipment and contemporary design:
Elevator and disabled access
Video intercom
Ground floor apartments have private pools and gardens
Top floor apartments have roof terraces with jacuzzi
One outdoor parking space comes with the apartment

Payment in stages

Planned completion: end of 2026 / beginning of 2027. year
The apartments are owned by a legal entity - the buyer is exempt from paying real estate sales tax
VAT is included in the price

This apartment offers superb comfort, a beautiful view of the sea and an elegant decoration, perfect for anyone looking for a modern lifestyle by the coast.

Contact:
Phone: +385 95 735 5171
E-mail: info@prestigeinvest.hr

ID CODE: 651

Ivana Ančić
Voditelj ureda
Mob: +385 95 73 55 171
Tel: +385 95 588 8082
E-mail: info@prestigeinvest.hr
www.prestigeinvest.hr
Caratteristiche
Tipologia
Appartamento
Contratto
Vendita
Piano
1 piano
Piani edificio
2
Ascensore
Superficie
88 m²
Locali
4
Camere da letto
3
Bagni
2
Balcone
Terrazzo
No
Box, posti auto
1 posto auto
Riscaldamento
Autonomo, ad aria
Climatizzazione
Autonomo, freddo/caldo
Informazioni sul prezzo
Prezzo
€ 559.900
Prezzo al m²
6.363 €/m²
Efficienza energetica

Consumo di energia

A+

Scopri ogni angolo dell'immobile
+8
Opzioni aggiuntive

Contatta l'inserzionista

Oppure