Terreno edificabile in Vendita

€ 125.000
891 m²

Nota

Annuncio aggiornato il 04/05/2026
Descrizione

This description has been translated automatically and may not be accurate

riferimento: I29826

Istria, Kršan. Vendesi terreno edificabile di 891 m2 a Kršan. Il terreno viene fornito con permesso di costruzione definitivo, IVA e oneri comunali pagati per una casa prefabbricata con una superficie abitabile totale di 130,10 m2. È prevista la costruzione della casa principale (110,90 m2) con piscina di 25 m2 e un edificio accessorio di 19,20 m2.

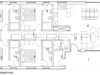
Distribuzione dell'edificio residenziale:
1. Ingresso coperto: 3,80 m2 (coeff. 0,50 = 1,90 m2 netto)
2. Locale tecnico: 2,20 m2
3. Corridoio: 3,10 m2
4. Soggiorno, cucina e sala da pranzo: 33,20 m2
5. Corridoio: 11,90 m2
6. WC e lavanderia: 2,20 m2
7. Camera: 10,20 m2
8. Bagno: 4,00 m2
9. Camera: 10,20 m2
10. Bagno: 4,00 m2
11. Camera: 10,00 m2
12. Bagno: 4,00 m2
13. Camera: 10,00 m2
14. Bagno: 4,00 m2
Il progetto prevede l'installazione di 4 climatizzatori, camino e parcheggio per 2 veicoli.

L'acquirente non paga il 3% di imposta sulle transazioni immobiliari.

Infrastruttura: Elettricità e acqua si trovano sulla strada di fronte al terreno, mentre il gas e la fognatura non sono disponibili. Il terreno è circondato dal verde ed è situato ai margini della zona edificabile, con accesso da una strada asfaltata.

Distanze:
- Negozio e caffè: 1,6 km
- Ristorante: 2 km
- Mare: 7 km
- Labin: 13 km
- Spiaggia: 17 km
- Autostrada: 24 km
- Aeroporto: 50 km
- Pula: 70 km

Per tutti gli interessati a visitare o per ulteriori informazioni, non esitate a contattarci.

Kršan è un tranquillo insediamento situato in un ambiente naturale, noto per la sua fortezza storica e il ricco patrimonio culturale. Offre un perfetto connubio tra vita tranquilla nella natura e la vicinanza a tutti i servizi essenziali, rendendolo ideale per vivere o investire.
Caratteristiche
Contratto
Vendita
Tipologia
Terreno edificabile
Superficie
891 m²
Informazioni sul prezzo
Prezzo
€ 125.000
Prezzo al m²
140 €/m²
Scopri ogni angolo dell'immobile
+19
Opzioni aggiuntive

Contatta l'inserzionista

Oppure