Terreno edificabile in Vendita

€ 91.000
560 m²

Nota

Annuncio aggiornato il 29/04/2026
Descrizione

This description has been translated automatically and may not be accurate

riferimento: I33008

Terreno edificabile con permesso per casa e piscina Poličnik - 560 m

In una posizione tranquilla nel comune di Poličnik, con vista sulla catena montuosa del Velebit, si vende un terreno edificabile di 560 m con permesso di costruzione definitivo per la realizzazione di una moderna casa familiare con piscina.

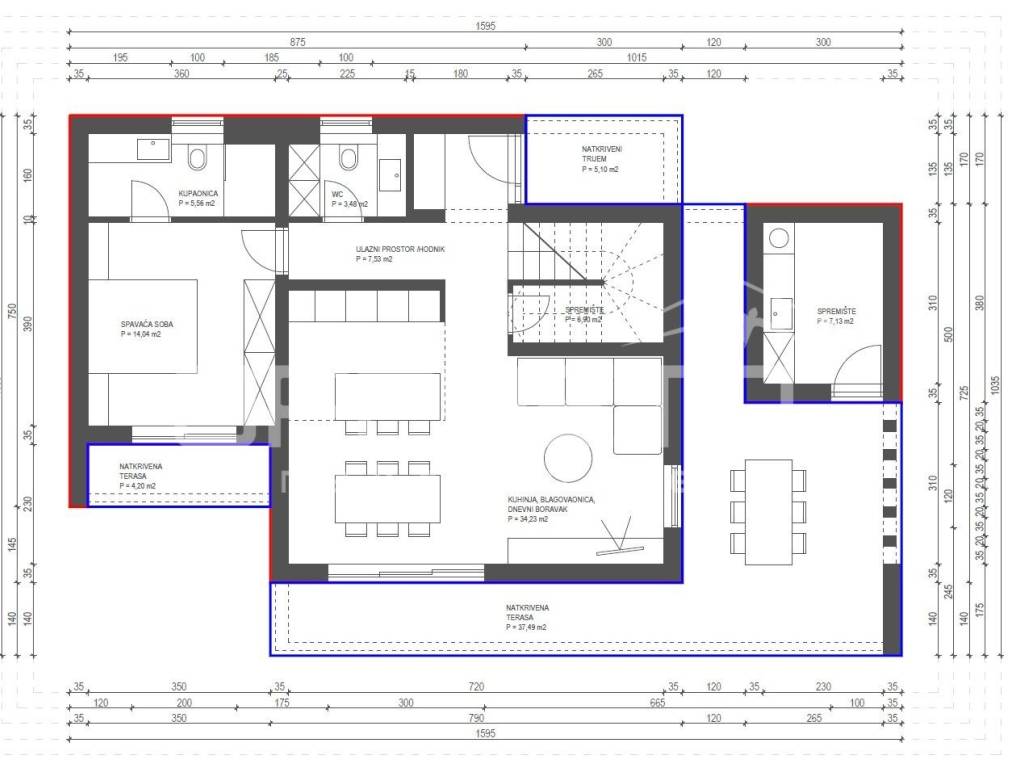
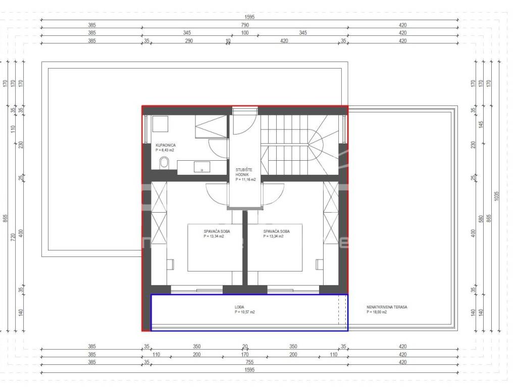
Il progetto prevede una casa unifamiliare con due piani (P+1), superficie lorda di 159,57 m, dimensioni 15,95 x 10,35 m e altezza del cornicione fino a 5,96 m. È prevista anche una piscina esterna di dimensioni 7,70 x 3,50 m e profondità fino a 1,70 m.

In pianta, il piano terra della casa è composto da un soggiorno open space con cucina e sala da pranzo, una camera da letto con bagno privato, un bagno per gli ospiti e due terrazze coperte, di cui una ha una superficie superiore a 37 m. Nel cortile è previsto un edificio accessorio che può servire come ripostiglio o cucina estiva. Al piano superiore si trovano due ampie camere da letto, un bagno, un loggiato coperto e una terrazza con superficie totale superiore a 25 m.

Il coefficiente di edificabilità è del 30%, mentre il coefficiente di utilizzazione è del 33%. La distanza dai confini adiacenti è conforme al piano urbanistico, e il tetto è previsto come piano e non calpestabile.
Il terreno ha accesso alla strada pubblica e possibilità di collegamento alla rete elettrica e idrica. L'infrastruttura prevede un proprio sistema di drenaggio e depurazione delle acque reflue (fossa settica e impianto di depurazione).

Considerata la posizione e l'ambiente, Poličnik offre un perfetto equilibrio tra vita urbana e la tranquillità offerta dall'entroterra rurale. Situato vicino a tutti i servizi chiave, compreso l'Aeroporto di Zara a soli 15 minuti di auto, questa posizione è ideale per una residenza permanente o una casa vacanze. Grazie all'infrastruttura sviluppata e alla connettività dei trasporti, tutte le comodità della città di Zara sono facilmente accessibili, mantenendo al contempo privacy e tranquillità.
La fermata dell'autobus si trova a circa 300 m dal terreno.

Il prezzo indicato è comprensivo di IVA.
Poiché il terreno è nel sistema IVA, non si paga l'imposta sulle transazioni immobiliari per l'acquisto.
Caratteristiche
Contratto
Vendita
Tipologia
Terreno edificabile
Superficie
560 m²
Informazioni sul prezzo
Prezzo
€ 91.000
Prezzo al m²
163 €/m²
Scopri ogni angolo dell'immobile
+14
Opzioni aggiuntive

Contatta l'inserzionista

Oppure