Bilocale nuovo, primo piano, Šestinski dol, Zagabria

€ 341.682
2
51 m²
1
1

Nota

Annuncio aggiornato il 09/02/2026
Descrizione

riferimento: I32701

Stan, NOVOGRADNJA, prodaja, Črnomerec, Kuniščak, 2sob, 51.77m2
Zgrada od 38 stanova, useljenje proljeće 2027.

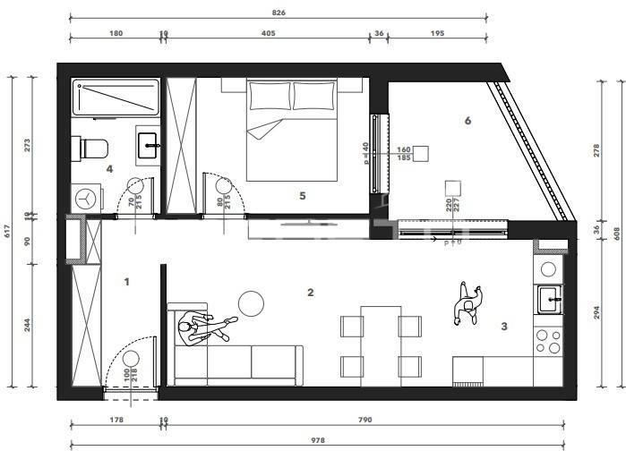
Sastoji se od ulaznog hodnika, kuhinje s blagovaonicom i dnevnog boravka, spavaće sobe, kupaonice i loggie. Uz stan je potrebno kupiti garažno mjesto i spremište.
Oprema: alu-stolarijom s troslojnim IZO staklima proizvođača Schucko (velike staklene stijene i visoki prozori sa niskim parapetima) s električnim podizanjem roleta, kamenom unutarnjom klupčicom i aluminijskom vanjskom klupčicom; keramičkim pločicama I. klase u sanitarnim prostorijama do stropa, prvoklasnom keramikom, kupaonskom opremom i sanitarijama, tušom/kadom; podnim grijanjem na toplanu preko ITPS-a (vodeno, svaki stan ima posebnu regulaciju temparature grijanja i temperature tople vode u stanu) u svim prostorijama, u kupaonicama dodatno električnim radijatorima ljestvama, s digitalnim termostatom; niskošumnim ventilatorima u svim sanitarnim prostorijama, vanjskim jedinicama klime, koje će biti smještene na krovu, dok će unutarnje jedinice klime biti u svim glavnim prostorijama, proizvođača klima opreme Daikin, gotovim parketom vrhunske kvalitete.
Nalazi se na odličnoj lokaciji u neposrednoj blizini svih potrebnih sadržaja te javnog gradskog prijevoza.
Caratteristiche
Tipologia
Appartamento
Contratto
Vendita
Piano
1 piano
Ascensore
Superficie
51 m²
Locali
2
Camere da letto
1
Bagni
1
Arredato
No
Riscaldamento
Centralizzato
Climatizzazione
Freddo/caldo
Informazioni sul prezzo
Prezzo
€ 341.682
Prezzo al m²
6.700 €/m²
Efficienza energetica

Consumo di energia

A+

Opzioni aggiuntive

Contatta l'inserzionista

Oppure