Terratetto unifamiliare 130 m², nuova, Bistra

€ 290.000
4
130 m²
3
No

Nota

Annuncio aggiornato il 09/02/2026
Descrizione

riferimento: I30602

PRODAJA, KUĆA U NIZU, NOVOGRADNJA, GORNJA BISTRA,
u miru, tišini i zelenilu, novogradnja vrhunske kvalitete u Gornjoj Bistri.

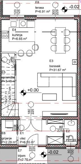
Kuća u nizu koja se sastoji od dnevnog boravka, blagovaonice, kuhinje, WC-a, terase, trijema, ulaznog prostora, spremišta i prostorije sa sustavom za grijanje u prizemlju te glavne spavaće sobe s vlastitom kupaonicom s tušem, dvije prostrane spavaće sobe, garderobne sobe, kupaonice s kadom, vešeraja, balkona i hodnikana katu.

Uz kuću dolazi vrt od 144 m2 te dva natkrivena parkirna mjesta.

Neki od prvoklasnih materijala korištenih u izgradnji za vrhunsku energetsku očuvanost i maksimalni komfor budućih stanara su:

ICF blokovi s armirano-betonskom konstrukcijom i Neoporom za vrhunsku izolaciju
aluminijska stolarija s troslojnim staklima i komorama punjenim plinom
aluminijske rolete punjene poliuretanom
bešumne cijevi
infracrveno podno grijanje
vrhunska keramika i SPC vinil podne obloge po izboru kupca

Kupac ne plaća porez na promet nekretnina.

Svi za život bitni sadržaji unutar nekoliko stotina metara.

Planirani završetak izgradnje i useljenje na ljeto 2025-e.
Caratteristiche
Tipologia
Terratetto unifamiliare
Contratto
Vendita
Piano
1
Ascensore
No
Superficie
130 m² | commerciale 875 m²
Locali
4
Camere da letto
3
Bagni
3
Arredato
No
Box, posti auto
1 posto auto
Riscaldamento
Autonomo, alimentazione elettrica
Climatizzazione
Freddo/caldo
Dettaglio superficie

Abitazione

Piano
1
Superficie
130,0 m²
Coefficiente
100%
Tipo superficie
Principale
Sup. commerciale
130,0 m²

Terreno

Piano
Piano terra
Superficie
745,0 m²
Coefficiente
100%
Tipo superficie
Accessoria
Sup. commerciale
745,0 m²
Informazioni sul prezzo
Prezzo
€ 290.000
Prezzo al m²
331 €/m²
Efficienza energetica
  • Anno di costruzione

    2025
  • Stato

    Nuovo / In costruzione
  • Riscaldamento

    Autonomo, alimentazione elettrica
  • Climatizzatore

    Freddo/caldo
Scopri ogni angolo dell'immobile
+8
Opzioni aggiuntive

Contatta l'inserzionista

Oppure