Quadrilocale nuovo, secondo piano, Cittanova

€ 560.000
4
125 m²
3
2
Balcone

Nota

Annuncio aggiornato il 03/05/2026
Descrizione

This description has been translated automatically and may not be accurate

riferimento: 296

Beautiful penthouse with sea view 500 meters from the sea

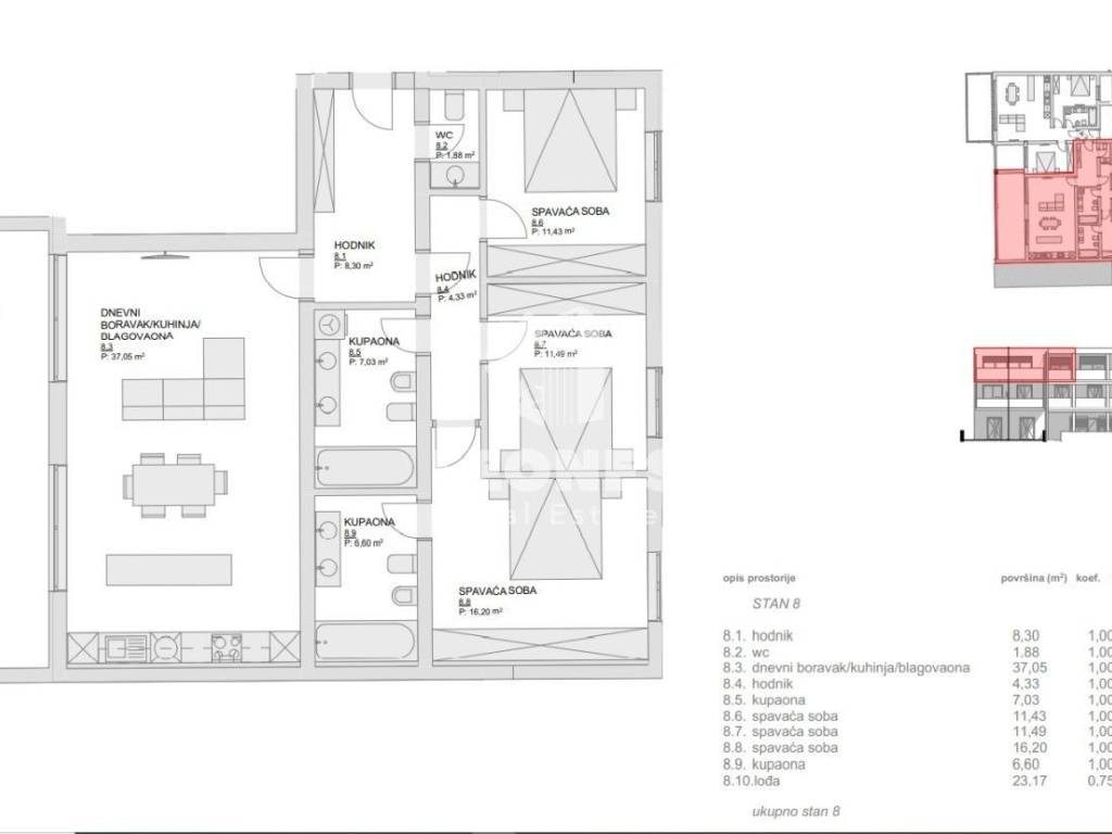
A beautiful apartment of 125m2 for sale in an attractive location overlooking the sea.
The apartment consists of an entrance hall, toilet, living room with kitchen and dining room, three bedrooms and two bathrooms.
From the living room there is an exit to a spacious covered terrace of 23m2 with a beautiful view of the sea.
The apartment also has two parking spaces.

It is located 500 meters from the sea and the beach while all other facilities such as pharmacy and supermarket are only 800 meters away.
The apartment is ideal for living but also for renting for tourist purposes.

www.leones-realestate.hr
Caratteristiche
Tipologia
Appartamento
Contratto
Vendita
Piano
2 piano
Superficie
125 m²
Locali
4
Camere da letto
3
Bagni
3
Arredato
No
Balcone
Box, posti auto
1 posto auto
Riscaldamento
Autonomo, a pavimento, alimentazione elettrica
Climatizzazione
Freddo/caldo
Altre caratteristiche
  • Porta blindata
Informazioni sul prezzo
Prezzo
€ 560.000
Prezzo al m²
4.480 €/m²
Efficienza energetica

Consumo di energia

A

Scopri ogni angolo dell'immobile
+20
Opzioni aggiuntive

Contatta l'inserzionista

Oppure