map icon

Appartamento primo piano, San Cassiano

San Cassiano
€ 325.000
63 m²
1
Parzialmente Arredato

Nota

Annuncio aggiornato il 01/05/2026
Descrizione

riferimento: s258

Olive Tree – više od stanovanja
Olive Tree je ekskluzivan stambeni projekt smješten u mirnom, zelenom dijelu Sukošana, okružen stoljetnim maslinicima i pogledom na more. Tri suvremene zgrade skladno se uklapaju u mediteranski krajolik, spajajući prirodnu tišinu s modernim komforom.
Projekt je osmišljen za one koji traže više od stanovanja – za one koji žele dom s dušom, pogledom koji oduzima dah i svakodnevicu ispunjenu mirom.
Svaki stan nudi privatnost, estetiku i osjećaj pripadnosti, dok krovne terase otkrivaju panoramu zadarskog arhipelaga. Olive Tree nije samo mjesto – to je životni stil u kojem svaki detalj ima značenje.
Uz svaki stan dolazi kompletno opremljena kuhinja s Bosch uređajima, kupaonica s perilicom rublja, kazetna tenda na terasi i pomno odabrani detalji koji prostoru odmah daju funkcionalnost, stil i vrijednost. 
Stanovi B5 i B6 dolaze s kompletno opremljenim i namještenim krovnim terasama što uključuje sljedeće: natkriveni dio krovne terase površine 25 m2 unutar kojeg se nalazi vanjska kuhinja s  otokom, plinskim roštiljem, duplom indukcijom, sudoperom, hladnjakom, vinotekom, radnom površinom, barskim stolicama i ugrađenim TV-om. U nenatkrivenom dijelu se nalaze jacuzzi, ležaljke za sunčanje, vanjski stol i stolice za 6 osoba.
Ugradnja namještaja i opreme je u tijeku te će oglas biti ažuriran fotografijama po završetku.
Sve je tu – da ne počinjete od nule, već od osjećaja doma.
ZGRADA B
U ponudi je 6 stambenih jedinica:
PRIZEMLJE:
B1-70,69 m2, kuhinja, blagovaonica, dnevni boravak, spavaća soba, kupaonica, natkrivena terasa, vanjski vrt, spremište u podrumu zgrade i garaža unutar podzemne garaže. CIJENA 367.500,00 EURA.
B2-75.38 m2, kuhinja, blagovaonica, dnevni boravak, spavaća soba, kupaonica, natkrivena terasa, vanjski vrt, spremište u podrumu zgrade i dva vanjska parkirna mjesta. CIJENA 392.000,00 EURA.
1.KAT:
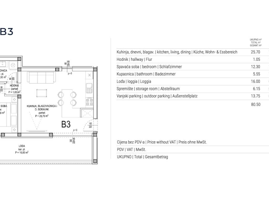
B3-62,43 m2, kuhinja, blagovaonica, dnevni boravak, spavaća soba, kupaonica, natkrivena terasa, spremište u podrumu zgrade i vanjsko parkirno mjesto. CIJENA 325.000,00 EURA.
B4-63 m2, kuhinja, blagovaonica, dnevni boravak, spavaća soba, kupaonica, natkrivena terasa, spremište u podrumu zgrade i vanjsko parkirno mjesto. CIJENA 325.000,00 EURA.
2.KAT:
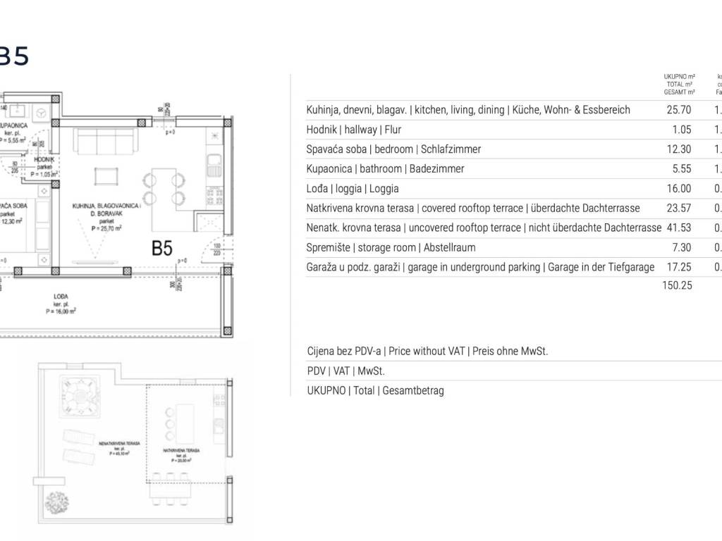
B5-91,04 m2, kuhinja, blagovaonica, dnevni boravak, spavaća soba, kupaonica,  natkrivena terasa, natkrivena krovna terasa, nenatkrivena  krovna terasa, spremište u podrumu zgrade i garaža unutar podzemne garaže. CIJENA 525.000,00 EURA.
B6-91,92 m2, kuhinja, blagovaonica, dnevni boravak, spavaća soba, kupaonica, natkrivena terasa, natkrivena krovna terasa, nenatkrivena  krovna terasa, spremište u podrumu zgrade i garaža unutar podzemne garaže. CIJENA 525.000,00 EURA.
Prodavatelj je pravna osoba u sustavu PDV-a što znači da je kupac oslobođen plaćanja poreza na promet nekretninama.
Konstrukcija i sigurnost
·       Građeno s POROTHERM blokovima za čvrstoću, izolaciju i zdravu mikroklimu.
·       Pojačana armatura osigurava dugotrajnost i sigurnost.
·       Sve izvedeno po najvišim standardima gradnje.
Prozori i staklene stijene
·       Korišteni REHAU PVC profili za vrhunsku izolaciju, trajnost i moderan izgled.
·       Velike klizne staklene stijene otvaraju prostor svjetlu i pogledu.
Fasada
·       STO fasadni sustav pruža zaštitu, estetiku i dugovječnost – bez kompromisa.
Prirodni materijali i dizajn
·       Rimski Travertino, prirodni kamen toplih nijansi i bogate teksture, ugrađen je na stubištima i balkonima.
·       Njegova patina s vremenom postaje ljepša, stvarajući osjećaj autentičnosti, tišine i trajnosti.
·       Ručna obrada svakog komada dodatno naglašava povezanost s prostorom i mediteranskom tradicijom.
Komfor i tehnologija
·       U stanove su ugrađeni tihi i učinkoviti klima uređaji Mitsubishi Electric.
·       Etaže povezuje moderan i pouzdan KONE lift.
·       Podzemna garaže.
Kuhinje, kupaonice i oprema
·       Kuhinje i kupaonice opremljene su Bosch uređajima visoke kvalitete i Hansgrohe sanitarijama.
·       Na terasama su predviđene kazetne tende koje čuvaju arhitektonski sklad.
·       Sve je pažljivo odabrano kako bi udobnost bila dio svakodnevice.
Podovi i završne obloge
·       Podovi su obloženi višeslojnim hrastovim parketom, koji prostoru daje toplinu, eleganciju i dugotrajnost.
·       Kupaonice su opremljene porculanskom keramikom velikog formata, s minimalnim fugama za čisti, luksuzan izgled.
·       Ugrađeno je DEVI podno grijanje, za tihu i postojanu toplinu u svakom kutu.
Sigurnost i detalji interijera
·       Protuprovalna i protupožarna KOLNOA ulazna vrata pružaju sigurnost i stil.
·       Unutarnja vrata po mjeri, do stropa, naglašavaju eleganciju prostora.
·       Staklene ograde na stubištima i balkonima otvaraju pogled i daju prozračnost.
Instalacije i rasvjeta
·       Električne instalacije opremljene su Vimar komponentama, poznatim po vrhunskom dizajnu i pouzdanosti.
·       Rasvjeta je diskretna, ambijentalna i funkcionalna, pažljivo usklađena.
Sukošan – destinacija za život i investiciju
Smješten na atraktivnoj lokaciji svega 7 minuta vožnje od Zadra i 10 minuta od Zračne luke Zadar, Sukošan predstavlja jednu od najpoželjnijih destinacija za život i investiciju na hrvatskoj obali.
Izvrsna prometna povezanost, blizina autoceste A1 te moderna infrastruktura čine ga lako dostupnim, kako za svakodnevni život, tako i za povremeni boravak.
Sukošan je više od slikovitog dalmatinskog mjesta – to je prostor koji nudi visoku kvalitetu života uz mediteranski ambijent. Prepoznatljiv po jednoj od najvećih marina na Jadranu, brojnim uvalama i plažama, kao i bogatoj gastronomskoj ponudi, ovo mjesto uspješno spaja tradicionalni ugođaj s modernim standardima stanovanja.
Okružen maslinicima, vinogradima i prirodnim zelenilom, Sukošan pruža mirno i sigurno okruženje, uz sve potrebne sadržaje nadohvat ruke – od trgovina, škola i ljekarni do restorana, kafića i sportskih sadržaja.
Kupnja nekretnine u Sukošanu predstavlja promišljenu investiciju u kvalitetan životni prostor, bilo da tražite privatnu oazu uz more ili dugoročnu vrijednost na atraktivnoj lokaciji u neposrednoj blizini Zadra.
Caratteristiche
Tipologia
Appartamento
Contratto
Vendita
Piano
1 piano
Superficie
63 m²
Arredato
Parzialmente Arredato
Box, posti auto
1 in box privato/box in garage
Altre caratteristiche
  • Porta blindata
Informazioni sul prezzo
Prezzo
€ 325.000
Prezzo al m²
5.159 €/m²
Efficienza energetica
  • Anno di costruzione

    2025
  • Certificazione energetica

    Esente
Scopri ogni angolo dell'immobile
+30
Opzioni aggiuntive

Contatta l'inserzionista

Oppure