Bilocale nuovo, primo piano, San Cassiano

€ 325.000
2
63 m²
1
1
Balcone

Nota

Annuncio aggiornato il 30/04/2026
Descrizione

This description has been translated automatically and may not be accurate

riferimento: A1589

Sukošan New Build Luxury Apartment with Lift

For sale is a luxury apartment in a new development in Sukošan, located only 280 m from the sea and 900 m from the town center. The apartment is situated on the first floor of a modern building with a lift and offers a partial sea view, which further increases the attractiveness of this property.
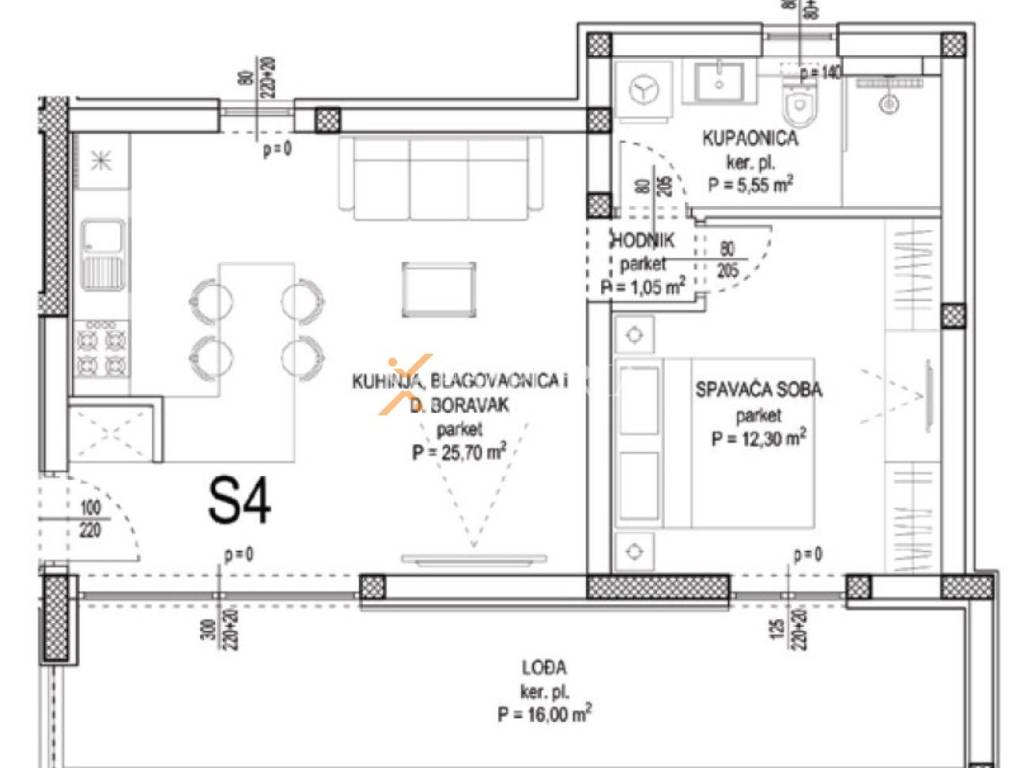
The layout comprises an entrance hall, one bedroom, a bathroom, an open-concept kitchen with dining area and living room, as well as a loggia. The net usable interior area amounts to 56,60 m2. The apartment also includes a storage room of 7,30 m2 in the basement and one outdoor parking space. The total net usable area with all appurtenances is 63,00 m2.
The building was completed in 2026 and holds an A energy certificate, confirming high construction standards and energy efficiency.
The buyer does not pay real estate transfer tax, which makes this property an excellent opportunity for comfortable living or as a secure real estate investment near the sea.

Equipment

The apartment features electric underfloor heating throughout, while two black designer Mitsubishi air conditioning units provide a pleasant indoor climate all year round. The kitchen with Bosch appliances is included in the price, as well as a dining table with four chairs connected to the kitchen area.
The building was constructed using brick thermal blocks and a façade with 10 cm Styrofoam insulation, contributing to excellent energy efficiency. PVC windows with triple glazing, electric shutters, and mosquito nets provide additional thermal and sound insulation. The entrance door is burglar-proof and fire-resistant, while the flat concrete roof emphasizes the modern architectural style.
Floors are finished with parquet in all rooms, except the bathroom where ceramic tiles are installed. The loggia is equipped with a retractable cassette awning. Additional features include Hansgrohe taps and a washing machine.

Location

Sukošan is a charming Dalmatian town nestled in the spacious Zlatna Luka bay, only 7 km from Zadar. With around 3,000 residents and nearby villages such as Debeljak, Glavica, and Gorica, it offers a peaceful Mediterranean atmosphere combined with excellent transport connections. The main attraction is D-Marin Dalmacija, the largest marina on the Adriatic, making Sukošan a true paradise for sailors and sea lovers.
The town is famous for its diverse beaches, including the popular Children’s Paradise, the quieter Podvare beach, or the pebble Makarska beach, as well as hidden coves waiting to be discovered. Swimming, sailing, and relaxing seaside walks are enhanced by a rich cultural and social life. During summer, visitors can enjoy fishermen’s feasts, concerts, folklore evenings, and the feast of St. Kasijan with its festive fireworks. Sports lovers are drawn by the swimming marathon, local tournaments, and the renowned regatta “Dance with Sails.”
Thanks to its unspoiled nature, first-class nautical facilities, and vibrant events calendar, Sukošan is one of the most desirable places to buy property on the Adriatic – whether you are looking for a tranquil home by the sea or an attractive investment with high rental potential.

Additional info

If you have found this property elsewhere advertised at a lower price, that same price is valid with us!

https://www.emporia-realestate.com/property/apartment-a1589-sukosan/
Caratteristiche
Tipologia
Appartamento
Contratto
Vendita
Piano
1 piano
Piani edificio
1
Ascensore
Superficie
63 m²
Locali
2
Camere da letto
1
Bagni
1
Arredato
No
Balcone
Box, posti auto
1 posto auto
Climatizzazione
Freddo/caldo
Altre caratteristiche
  • Porta blindata
Informazioni sul prezzo
Prezzo
€ 325.000
Prezzo al m²
5.159 €/m²
Efficienza energetica

Consumo di energia

A

Scopri ogni angolo dell'immobile
+10
Opzioni aggiuntive

Contatta l'inserzionista

Oppure