Trilocale nuovo, primo piano, Čakovec

€ 209.160
3
68 m²
1
1

Nota

Annuncio aggiornato il 13/03/2026
Descrizione

riferimento: I35078

PRODAJA, STAN, ČAKOVEC
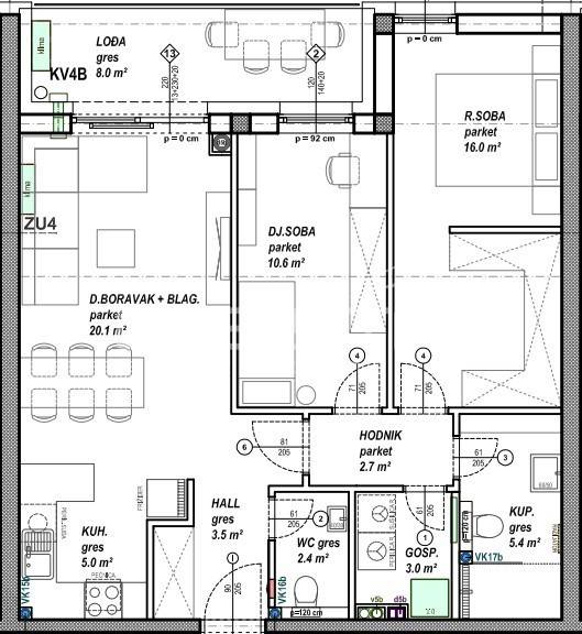
Prodaje se stan površine 68,70 m2 s lođom površine 8,00 m2 na prvom katu niskoenergetske stambeno - poslovne zgrade na odličnoj lokaciji. Zgrada se sastoji od podruma, prizemlja, prvog, drugog i trećeg kata te sadrži ukupno 108 stambenih jedinica i 2 poslovna prostora. Moguć je odabir podnih obloga (keramika, parket ili laminat) te odabir unutarnje stolarije. Uz stan moguća je kupovina vanjskog parkirnog mjesta, garažnog mjesta bez spremišta ili garažnog mjesta sa spremištem.
Za dodatne informacije stojimo na raspolaganju, a ovisno o načinu i količini plaćanja moguća je određena korekcija cijene.
Caratteristiche
Tipologia
Appartamento
Contratto
Vendita
Piano
1 piano
Ascensore
Superficie
68 m²
Locali
3
Camere da letto
2
Bagni
1
Arredato
No
Riscaldamento
Centralizzato, alimentato a gas
Climatizzazione
Freddo/caldo
Informazioni sul prezzo
Prezzo
€ 209.160
Prezzo al m²
3.076 €/m²
Efficienza energetica
  • Anno di costruzione

    2026
  • Stato

    Nuovo / In costruzione
  • Riscaldamento

    Centralizzato, alimentato a gas
  • Climatizzatore

    Freddo/caldo
Scopri ogni angolo dell'immobile
+4
Opzioni aggiuntive

Contatta l'inserzionista

Oppure