Bilocale Ulica braće Seljan, Privlaka

€ 239.000
2
75 m²
T
Terrazzo

Nota

Annuncio aggiornato il 18/03/2026
Descrizione

This description has been translated automatically and may not be accurate

riferimento: 457-S

We are selling an apartment with a garden S104 on the ground floor of a new building in Privlaka near Zadar, south facing.

The building is located 120 meters from the sea and the beach, and has a shared outdoor swimming pool. Each apartment has one outdoor parking space.

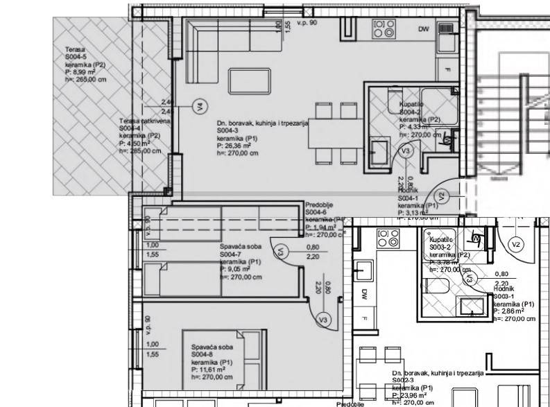
Apartment S104 ground floor, building A - southwest facing consists of: 2 bedrooms, hallway, bathroom, living room with kitchen, terrace and garden.

Floor areas:
- interior area of ​​the apartment: 54.48 m2
- exterior areas:
terrace 1 - 4.5 m2
terrace 2 - 8.99 m2
garden - 116.98 m2
parking space - 12.5 m2

Total floor area: 197.45 m2 Net area: 74.90 m2

All apartments have:
-Smart inverter air conditioning heating and cooling systems
-Underfloor heating in bathrooms
-Top-quality interior joinery with full frames of modern design and lines
-Modern six-chamber PVC exterior joinery with insulated triple-layer glass and Low-e coating on the outside from renowned European manufacturers
-Exterior joinery is equipped with electrically operated ALU shutters and integrated mosquito nets
-Top-quality sanitary equipment from renowned EU manufacturers
-Parquet and first-class ceramics
-Preparation for smart installation
-Smart key card for entering the building
-Video intercom
-Thermo facade
- All structural elements are dimensioned and will be built according to the highest standards in earthquake engineering (9 seismic zones).

The buildings are located in a quiet part of Privlaka right by the sea, close to all the necessary amenities of urban life (shops, cafes and restaurants).
Privlaka is a picturesque tourist and fishing town located
on a spacious, flat peninsula. Surrounded on all three sides
by crystal clear sea and God-given beaches, located between
the historically and culturally rich cities of Zadar and Nin and is the westernmost
point of Dalmatia. It is known for its beautiful
sunsets with sandy bays and fishing tradition.
Ideal for a family vacation, but also for those who love sports (running,
cycling, rollerblading, surfing...)

Privlaka is:
- 20 km from Zadar
- 30 km from Zadar Airport ( ZAD )
- 40 km from the highway exit
Caratteristiche
Tipologia
Appartamento | Intera proprietà | Immobile di lusso
Contratto
Vendita
Piano
Piano terra
Piani edificio
2
Superficie
75 m²
Locali
2
Camere da letto
2
Cucina
Cucina a vista
Terrazzo
Box, posti auto
1 posto auto
Riscaldamento
Autonomo, alimentazione elettrica
Climatizzazione
Autonomo, freddo/caldo
Vista
Mare
Distanza dal mare
120 m
Altre caratteristiche
  • Porta blindata
  • Impianto tv con parabola satellitare
  • Piscina
  • VideoCitofono
Dettaglio superficie

Abitazione

Piano
Piano terra
Superficie
75,0 m²
Coefficiente
100%
Tipo superficie
Principale
Sup. commerciale
75,0 m²
Informazioni sul prezzo
Prezzo
€ 239.000
Prezzo al m²
3.187 €/m²
Efficienza energetica
  • Anno di costruzione

    2026
  • Stato

    Nuovo / In costruzione
  • Riscaldamento

    Autonomo, alimentazione elettrica
  • Climatizzatore

    Autonomo, freddo/caldo
Scopri ogni angolo dell'immobile
+31
Opzioni aggiuntive

Contatta l'inserzionista

Oppure