Trilocale nuovo, secondo piano, Plovanija - Vidikovac, Zara

€ 298.000
3
95 m²
1
2
Terrazzo

Nota

Annuncio aggiornato il 06/03/2026
Descrizione

This description has been translated automatically and may not be accurate

riferimento: 5012

A high-quality new building project with a sea view is for sale in a prime location in Zadar, in the Bilig area.
This is a multi-apartment building consisting of a total of 9 apartments. The building has a ground floor, first and second floors with access to roof terraces.
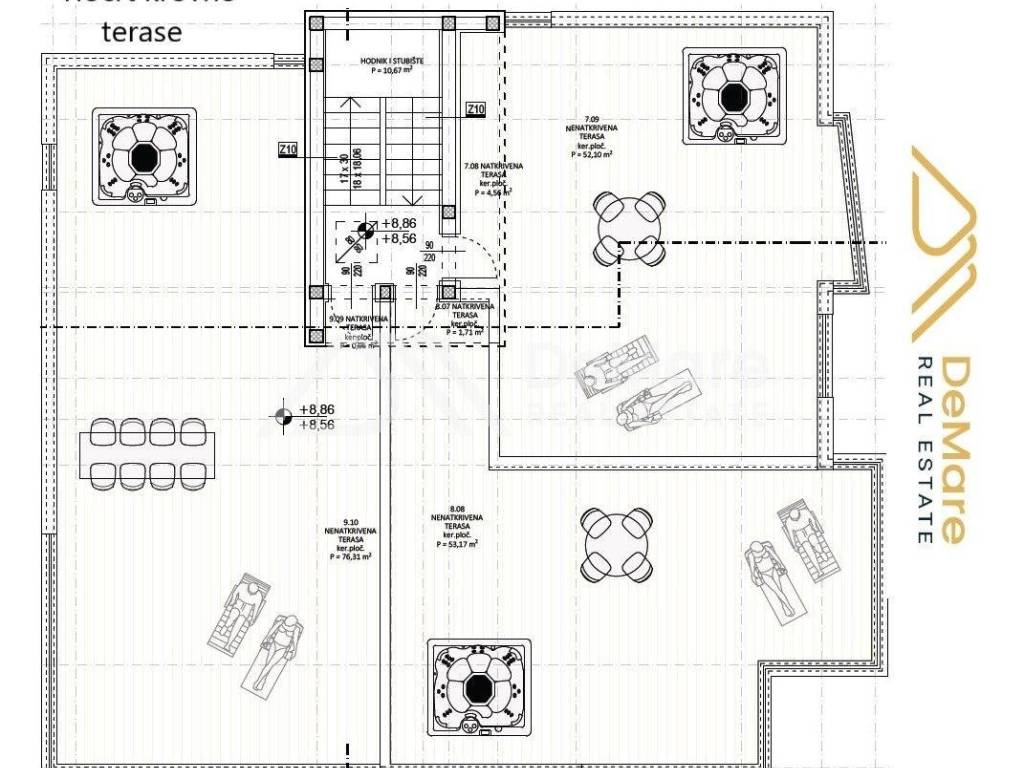
The roof is divided into three roof terraces, and each apartment located on the second floor has a separate roof terrace.
For heating and cooling the apartments, air conditioning units have been installed in the living room and bedrooms, and underfloor electric heating has been installed throughout the apartment.
Modern, high-quality construction materials and equipment will be used in the construction and furnishing of the building.
The building will have a brick-concrete structure, a thermal facade (10 cm), first-class PVC joinery with built-in mosquito nets and large sliding glass walls with electrically operated roller shutters will be installed.
The execution of construction works has already started, and the expected completion of the works and moving into the apartments is in the middle of 2026.
 
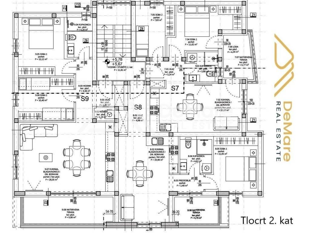
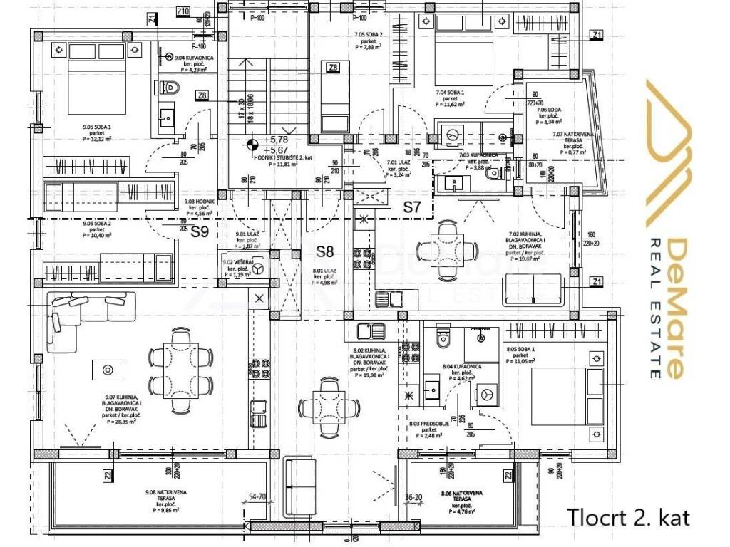
2ND FLOOR S9 ≅ Apartment with 2 bedrooms and a roof terrace
The apartment is located on the 2nd floor of the building and consists of:
- entrance area / hallway (2.87 m2),
- open space living room with kitchen and dining room (28.35 m2),
- bedroom (12.12 m2),
- bedroom (10.40 m2),
- bathroom (4.29 m2), and
- covered terrace (9.86 m2).
The interior living space occupies an area of ​​63.78 m2.
Above the apartment there is a beautiful roof terrace with a total area of ​​77.26 m2, where various outdoor amenities can be set up and arranged, according to the wishes of the buyers.
The apartment also includes 2 outdoor parking spaces (2 x 13.75 m2) and a storage room (3.26 m2) in the basement of the building, so the total calculated useful value of the apartment with its all additional spaces is 95.39 m2 (gross area of ​​the apartment 176.76 m2).
 
There is also the option of choosing ceramics and parquet as agreed with the investor, depending on the construction phases.
 
For all other information and presentation of the project, feel free to contact us!
 
De Mare d.o.o.
+385 23 300 400
info@demare.hr
 
 
LOCATION:
The facility is located in a quiet location, 5 minutes' drive (3 km) from the sea, the beach and the center of Zadar - the peninsula, and it is close to all the necessary facilities (supermarket, school, kindergarten, pharmacy, medical and dental clinic, coffee bar, and playground) for a pleasant and peaceful life.
Zadar airport is only 8 km away and is well connected to many European cities and destinations.
The Zadar ferry port, which is 3 km from the property, has lines with most of the islands, and during the summer season it is a stop for numerous tourist cruisers.
Se vuoi saperne di più, puoi parlare con Daniel Mulahmetović.
Caratteristiche
Tipologia
Appartamento
Contratto
Vendita
Piano
2
Piani edificio
2
Superficie
95 m²
Locali
3
Camere da letto
2
Bagni
1
Terrazzo
Box, posti auto
1 posto auto
Riscaldamento
Autonomo, ad aria, alimentazione elettrica
Climatizzazione
Autonomo, freddo/caldo
Vista
Mare, panoramica
Distanza dal mare
3 m
Altre caratteristiche
  • Infissi esterni in vetro / PVC
  • Porta blindata
Dettaglio superficie

Abitazione

Piano
2
Superficie
95,4 m²
Coefficiente
100%
Tipo superficie
Principale
Sup. commerciale
95,4 m²
Informazioni sul prezzo
Prezzo
€ 298.000
Prezzo al m²
3.137 €/m²
Dettaglio dei costi
Spese condominio
Nessuna spesa condominiale
Efficienza energetica
  • Anno di costruzione

    2025
  • Stato

    Nuovo / In costruzione
  • Riscaldamento

    Autonomo, ad aria, alimentazione elettrica
  • Climatizzatore

    Autonomo, freddo/caldo
Scopri ogni angolo dell'immobile
+16
Inserzionista
scheda agenzia
Opzioni aggiuntive

Contatta l'inserzionista

Oppure