Terratetto unifamiliare Texas, Varasdino

€ 371.100
3
151 m²
Terrazzo

Nota

Annuncio aggiornato il 03/03/2026
Descrizione

riferimento: EUROVILLA-638082

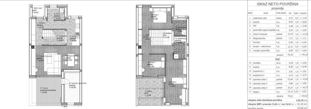
Varaždin, Texas stambena jedinica koja se nalazi u sklopu 6 kuća u nizu NKP 123,70 m² s vlastitim vrtom i dva parkirna mjesta.Prizemlje sadrži dnevni boravak spojen s blagovaonicom, kuhinju, hodnik, odvojeni wc, spremište ispod stubište, a iz dnevnog dijela izlazi se na terasu i vrt. Na katu se nalazi master spavaća soba s walk in ormarom, dvije dječje sobe, kupaonica i balkon.Oprema:dizalica topline/podno grijanjeklima jedinice na obje etažePVC stolarija bijele boje sa troslojnim IZO staklimulazna protuprovalna vratapodne obloge kombinacija keramike i parketStanu pripada vrt od cca. 100 m² koji se dodatno cijeni po 150 EUR/m².Rok useljenja krajem 2026.Za više informacija slobodno nas kontaktirajte!... Više na eurovilla.hr, ID: 638082
Se vuoi saperne di più, puoi parlare con Kristina Tomiek.
Caratteristiche
Tipologia
Terratetto unifamiliare
Contratto
Vendita
Piano
Piano terra
Superficie
151 m²
Locali
3
Camere da letto
3
Terrazzo
Dettaglio superficie

Abitazione

Piano
Piano terra
Superficie
151,4 m²
Coefficiente
100%
Tipo superficie
Principale
Sup. commerciale
151,4 m²
Informazioni sul prezzo
Prezzo
€ 371.100
Prezzo al m²
2.458 €/m²
Efficienza energetica
  • Stato

    Nuovo / In costruzione
  • Certificazione energetica

    Esente
Planimetria
Scopri ogni angolo dell'immobile
+2
Inserzionista
scheda agenzia
Opzioni aggiuntive

Contatta l'inserzionista

Oppure