Appartamento nuovo, secondo piano, Privlaka

€ 428.000
5+
107 m²
2
2

Nota

Annuncio aggiornato il 28/04/2026
Descrizione

riferimento: 2244-1

Novi projekt apartmani u izgradnji, predprodaja
Smješteni na izvrsnoj lokaciji, udaljeni od mora i plaže svega 100 metara s blagim padom terena prema moru.
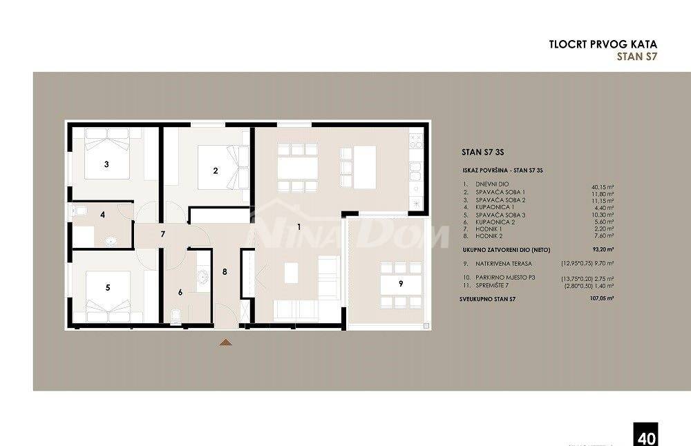
Apartman S7 smještena je na drugom katu i sastoji se od hodnika,dvije kupaone, tri spavaće sobe, kuhinje s dnevnim boravkom, natkrivenom terasom, ostava (spremište br,7) 2.80 m2.
Apartmanu pripada parkirno mjesto P3 13.75 m2
planirani rok završnih radova početak 2026 godine.
Cijena apartmana s pripadcima iznosi 428 000
Se vuoi saperne di più, puoi parlare con Gordana Ivanika.
Caratteristiche
Tipologia
Appartamento
Contratto
Vendita
Piano
2 piano
Superficie
107 m²
Locali
5+
Camere da letto
3
Bagni
2
Informazioni sul prezzo
Prezzo
€ 428.000
Prezzo al m²
4.000 €/m²
Efficienza energetica
  • Anno di costruzione

    2025
  • Stato

    Nuovo / In costruzione
  • Certificazione energetica

    Non classificabile
Scopri ogni angolo dell'immobile
+4
Inserzionista
scheda agenzia
Opzioni aggiuntive

Contatta l'inserzionista

Oppure