Appartamento nuovo, primo piano, Privlaka

€ 399.000
5
100 m²
2
1

Nota

Annuncio aggiornato il 28/04/2026
Descrizione

riferimento: 2242-1

Novi projekt apartmani u izgradnji, predprodaja
Smješteni na izvrsnoj lokaciji, udaljeni od mora i plaže svega 100 metara s blagim padom terena prema moru.
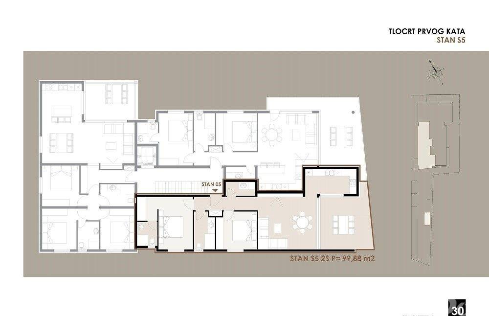
Apartman S5 smješten jna prvom katu i sastoji se od hodnika,dvije kupaone, dvije spavaće sobe, kuhinje s dnevnim boravkom, wc, natkrivenom terasom, ostava (spremište br,3) 2.20 m2.
Apartmanu pripada parkirno mjesto P8 13.75 m2
planirani rok završnih radova početak 2026 godine.
Cijena apartmana s pripadcima iznosi 399 000
Se vuoi saperne di più, puoi parlare con Gordana Ivanika.
Caratteristiche
Tipologia
Appartamento
Contratto
Vendita
Piano
1 piano
Superficie
100 m²
Locali
5
Camere da letto
2
Bagni
2
Informazioni sul prezzo
Prezzo
€ 399.000
Prezzo al m²
3.990 €/m²
Efficienza energetica
  • Anno di costruzione

    2025
  • Stato

    Nuovo / In costruzione
  • Certificazione energetica

    Non classificabile
Scopri ogni angolo dell'immobile
+3
Inserzionista
scheda agenzia
Opzioni aggiuntive

Contatta l'inserzionista

Oppure