Trilocale nuovo, primo piano, Privlaka

€ 472.000
3
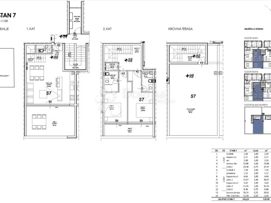
129 m²
2
1
Terrazzo

Nota

Annuncio aggiornato il 12/02/2026
Descrizione

This description has been translated automatically and may not be accurate

riferimento: DA100066189

An apartment for sale on the first floor of a new building in Privlaka, only 120 meters from the sea. The apartment has three bedrooms, two bathrooms, a kitchen with a dining room and a living room with access to a loggia. The apartment has a surface area of 107 m2. The building is modern, energy-efficient and located in a quiet part of Privlaka, ideal for living or vacationing. Each apartment has a secured parking space.

ID CODE: DA100066189

Mauro Bobić
Agent s licencom
Mob: 099/627-2163
Tel: 023/551-400
E-mail: mauro.bobic@dogma-nekretnine.com
www.dogma-nekretnine.com
Se vuoi saperne di più, puoi parlare con Mauro Bobić.
Caratteristiche
Tipologia
Appartamento
Contratto
Vendita
Piano
1 piano
Superficie
129 m²
Locali
3
Camere da letto
2
Bagni
2
Balcone
No
Terrazzo
Informazioni sul prezzo
Prezzo
€ 472.000
Prezzo al m²
3.659 €/m²
Efficienza energetica

Consumo di energia

A+

Scopri ogni angolo dell'immobile
+8
Opzioni aggiuntive

Contatta l'inserzionista

Oppure