Terratetto plurifamiliare 124 m², nuova, Varasdino

€ 371.130
4
124 m²
2
No
Balcone
Terrazzo

Nota

Annuncio aggiornato il 17/03/2026
Descrizione

riferimento: k688

www.euroestate-nekretnine.hr (ID: k688)

KUPCI NE PLAĆAJU POSREDNIČKU PROVIZIJU, A KUPNJOM NEKRETNINE IZ NAŠE PONUDE MOGU SUDJELOVATI U NAŠOJ NAGRADNOJ IGRI I OSVOJITI CITROEN C3 !

NAGRADNA IGRA TRAJE OD 01.03.2026. - 01.03.2027., A PRAVILA SU DOSTUPNA NA NAŠOJ STRANICI www.euroestate-nekretnine.hr

PRODAJE SE kuća u nizu u ekskluzivnoj novogradnji na vrlo privlačnoj lokaciji sa dvorištem i dva vanjska parkirna mjesta, ukupne površine 151,39 m2 (NKP 123,70 m2).

CIJENA: 3.000,00 EUR / m2 u pretprodaji

- privlačna mirna lokacija u blizini svih potrebnih sadržaja (škole, vrtići, dućani, ljekarna, pošta, Centar i sl.)
- princip gradnje "KLJUČ U RUKE",
- kuća se proteže na dvije etaže (prizemlje i kat),
- ravno neprohodno krovište,
- novogradnja, planirani završetak gradnje: kraj 2026. godine,
- A+ energetski razred,
- orijentacija: sjever - jug,
- grijanje pomoću električne dizalice topline u svim prostorijama kuće,
- hlađenje pomoću klimatizacijskih uređaja,
- PVC stolarija bijele boje sa 3-slojnim IZO staklima + ugrađene rolete,
- prodavatelj ima pravo na izmjenu projektom predviđene opreme za ugradnju u oglašenu nekretninu, koja je navedena u ovom oglasu, ali sve u dogovoru s kupcem nekretnine,
- podne obloge kombinacija keramike i parketa,
- kući pripada i vanjsko spremište,
- u nizu od 6 stambenih jedinica,
- kući pripada vrt od cca. 75 m2 koji se dodatno cijeni po 150 EUR/m2

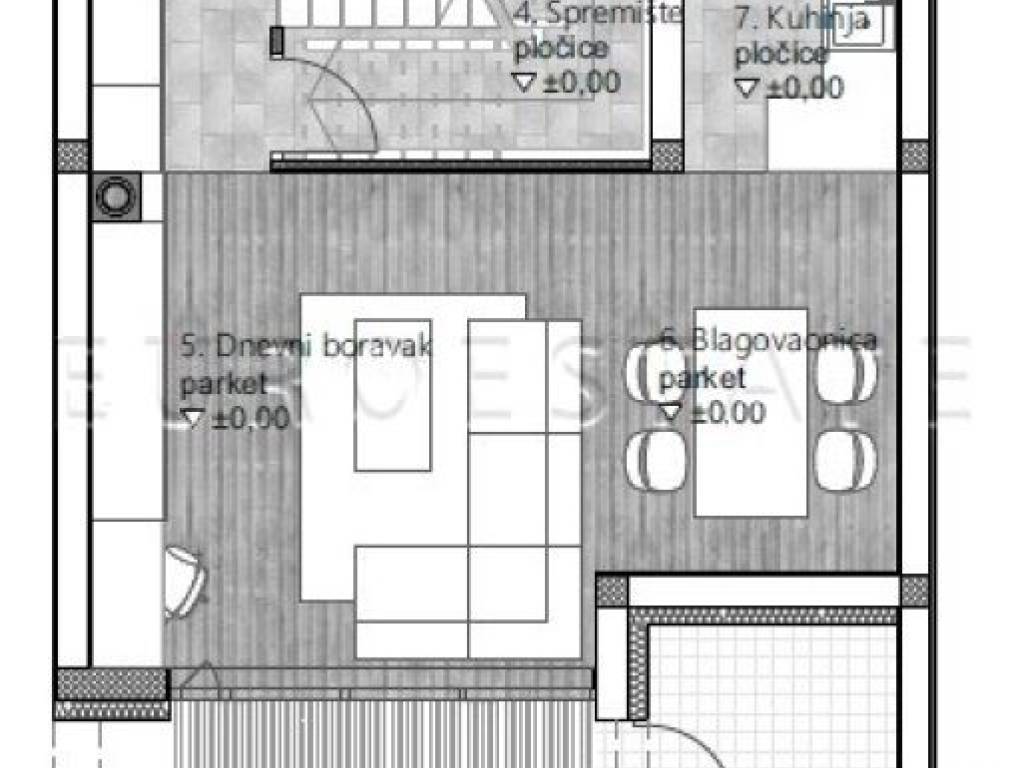
PROSTORIJE NEKRETNINE: vidi priloženi tlocrt i popis površina

PRIZEMLJE: natkriveni ulaz, hodnik, WC, spremište ispod stubišta, dnevni boravak, blagovaonica, kuhinja, natkrivena terasa, vanjsko spremište

KAT: stubište, hodnik, kupaonica 1, kupaonica 2, spavaća soba 1, spavaća soba 2, spavaća soba 3, balkon

ZA VIŠE INFORMACIJA O NEKRETNINI I RAZGLEDAVANJE ISTE MOLIMO KONTAKTIRAJTE NAS NA 098 652 059 ILI 099 674 2492 ili NAS KONTAKTIRAJTE PUTEM E-MAIL-a, HVALA !
Prilikom pregleda nekretnine potencijalnim kupcima ne naplaćuju se nikakvi troškovi.

KONAČNU CIJENU KUPAC UGOVARA IZRAVNO S PRODAVATELJEM NAKON PREGLEDA NEKRETNINE.
Caratteristiche
Tipologia
Terratetto plurifamiliare | Intera proprietà | Immobile di lusso
Contratto
Vendita | Immobile a reddito
Piano
Piano terra, 1
Piani edificio
1
Ascensore
No
Superficie
124 m²
Locali
4
Camere da letto
3
Cucina
Cucina a vista
Bagni
2
Arredato
No
Balcone
Terrazzo
Box, posti auto
2 posto auto
Riscaldamento
Autonomo, a pavimento, alimentato a pompa di calore
Climatizzazione
Autonomo, freddo/caldo
Altre caratteristiche
  • Esposizione doppia
  • Fibra ottica
  • Infissi esterni in vetro / PVC
  • Porta blindata
  • Ripostiglio
  • Toilette separata
  • Impianto tv con parabola satellitare
Dettaglio superficie

Abitazione

Piano
Piano terra
Superficie
59,1 m²
Coefficiente
100%
Tipo superficie
Principale
Sup. commerciale
59,1 m²

Abitazione

Piano
1
Superficie
64,5 m²
Coefficiente
100%
Tipo superficie
Principale
Sup. commerciale
64,5 m²
Informazioni sul prezzo
Prezzo
€ 371.130
Prezzo al m²
2.993 €/m²
Dettaglio dei costi
Spese condominio
Nessuna spesa condominiale
Spese riscaldamento
€ 300/anno
Efficienza energetica

Consumo di energia

≥ 250 kWh/m² annoA+

Scopri ogni angolo dell'immobile
+4
Opzioni aggiuntive

Contatta l'inserzionista

Oppure