Trilocale primo piano, Cittanova

€ 333.830
3
95 m²
1
1
No
Balcone

Nota

Annuncio aggiornato il 23/12/2025
Descrizione

This description has been translated automatically and may not be accurate

riferimento: 1407

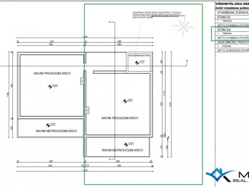
An attractive apartment for sale in a quiet location in Novigrad, 2000 m from the center of Novigrad and 1800 m from the sea and a beautifully landscaped beach. The apartment is located on the 1st floor of a building with a total of 4 apartments and has 78 m2. The apartment consists of an entrance hall, a laundry room, a bathroom, 2 bedrooms and an open space where there is a kitchen with a dining room and a living room with access to a large balcony of 21 m2. The apartment has 1 parking space and a large roof terrace of 70 m2 with a view of the sea. The apartment has been prepared for underfloor heating, and cooling is via air conditioning. The apartment can be used for residential or tourist purposes.
Caratteristiche
Tipologia
Appartamento
Contratto
Vendita
Piano
1 piano
Piani edificio
1
Ascensore
No
Superficie
95 m²
Locali
3
Camere da letto
2
Bagni
1
Arredato
No
Balcone
Box, posti auto
1 posto auto
Climatizzazione
Freddo/caldo
Informazioni sul prezzo
Prezzo
€ 333.830
Prezzo al m²
3.514 €/m²
Efficienza energetica
  • Anno di costruzione

    2024
  • Climatizzatore

    Freddo/caldo
  • Certificazione energetica

    Esente
Scopri ogni angolo dell'immobile
+4
Opzioni aggiuntive

Contatta l'inserzionista

Oppure