Trilocale nuovo, piano terra, San Cassiano

€ 354.000
3
1 m²
1
T
No
Terrazzo

Nota

Annuncio aggiornato il 28/11/2025
Descrizione

This description has been translated automatically and may not be accurate

riferimento: RE638238

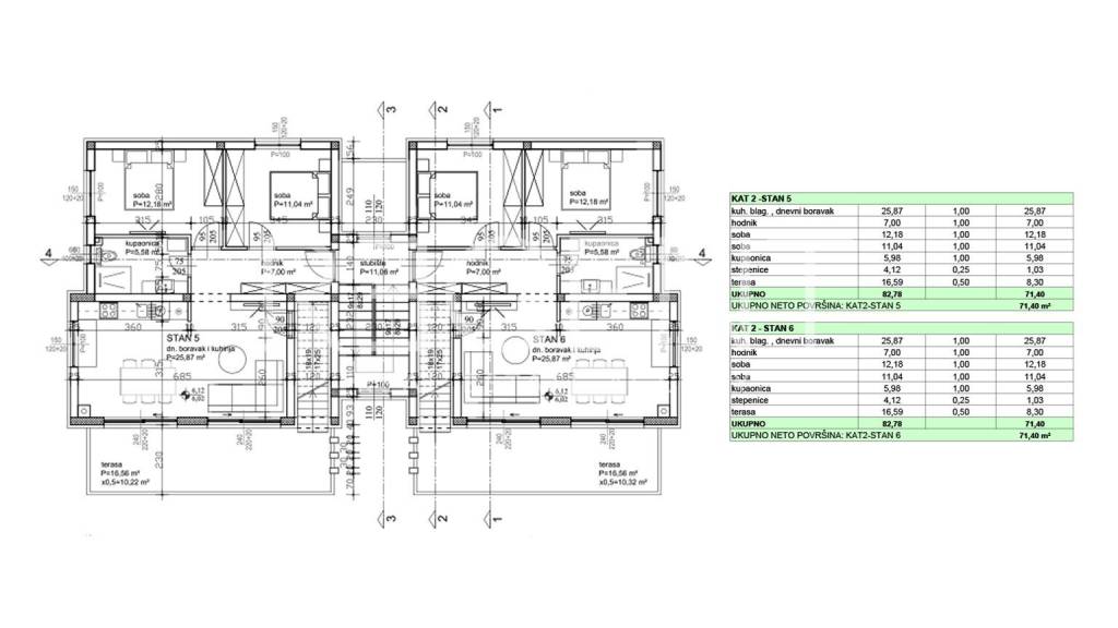
Zara, Sukošan – appartamento trilocale vicino al mare 88,60 m², nuova costruzione

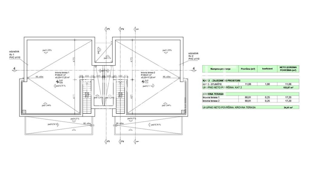
Appartamento con tre camere da letto di 88,60 m², situato al secondo piano di un moderno edificio residenziale a Sukošan, vicino a Zara. L'appartamento si trova in una posizione tranquilla, a pochi minuti a piedi dal mare e da tutti i servizi importanti. Composto da un corridoio, due camere da letto, un bagno, una cucina e un soggiorno con accesso alla terrazza. L'appartamento comprende anche una scala privata che conduce a una terrazza sul tetto separata con una superficie totale di 68,81 m² e un posto auto esterno. L'appartamento sarà dotato di materiali e attrezzature di alta qualità: • Struttura in cemento armato, muri in mattoni • Infissi in legno-alluminio di alta qualità • Piastrelle in gres porcellanato italiano di 1a classe (Marazzi/Mirage) • Parquet in rovere nelle camere da letto • Riscaldamento a pavimento in bagno e soggiorno • Sistema di climatizzazione multi-split Mitsubishi • Pietra nelle scale e all'ingresso dell'edificio • Sanitari Villeroy & Boch • Posto auto pavimentato con cubetti di cemento • Giardini paesaggistici e ambiente progettato orticolturalmente • Porta d'ingresso antintrusione L'edificio è attualmente in costruzione e il completamento dei lavori è previsto per gennaio 2026. Questa proprietà è un'eccellente opportunità per la vita familiare, ma anche come investimento per l'affitto turistico. Per maggiori informazioni o per concordare una visita, non esitate a contattarci.
Caratteristiche
Tipologia
Appartamento
Contratto
Vendita
Piano
Piano terra
Piani edificio
2
Ascensore
No
Superficie
1 m²
Locali
3
Camere da letto
2
Bagni
1
Terrazzo
Box, posti auto
1 posto auto
Riscaldamento
Centralizzato, ad aria, alimentazione elettrica
Climatizzazione
Autonomo, freddo/caldo
Distanza dal mare
200 m
Informazioni sul prezzo
Prezzo
€ 354.000
Prezzo al m²
354.000 €/m²
Efficienza energetica

Consumo di energia

A

Planimetria
Opzioni aggiuntive

Contatta l'inserzionista

Oppure