1/5


Oglas ažuriran 22. 12. 2025.
Opis
referenca: 3274
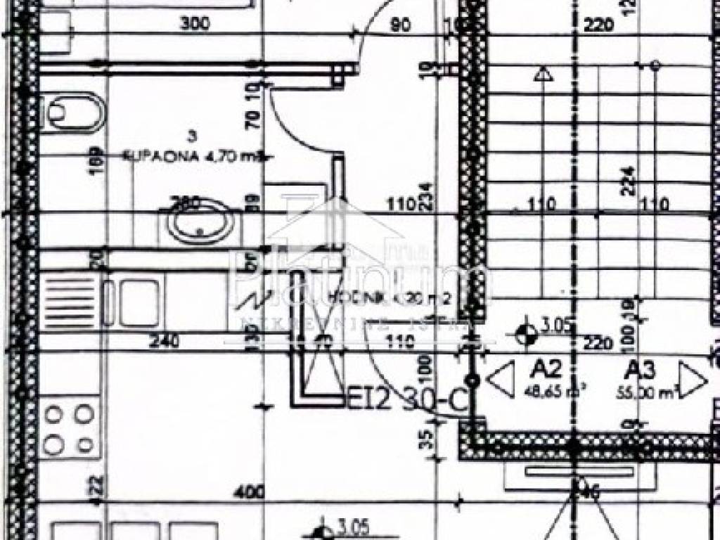
PULA MONTEŠERPO STAN 1 KAT 48M2 + PARKING
PULA MONTEŠERPO
Prodajemo stan NA 1 KATU u novogradnji.
Stan se sastoji od sobe, hodnika, kuhinje i blagovaone, dnevnog boravka i terase.
Parkirno mjesto.
Klima.
Završetak radova 12/2026
INFO NA 0911608456
Značajke
- Vrsta
- Stan
- Ugovor
- Prodaja
- Kat
- 1 kat
- Površina
- 48 m²
- Kupaonice
- 1
- Garažno mjesto, parkirna mjesta
- 1 na zajedničkom parkingu
Informacije o cijeni
- Cijena
- € 133.700
- Cijena po m²
- 2.785 €/m²
Energetska učinkovitost
Energetski certifikat
Neklasificirano
Otkrijte svaki kutak nekretnine
Dodatne mogućnosti