Četverosobni stan Vodice, Vodice

€ 360.000
4
89 m²
2
2
Ne
Terasa

Bilješka

Oglas ažuriran 08. 01. 2026.
Opis

referenca: MO-SJ3

Vodice, stan, 3 spavaće, 300 m od mora, top lokacija

Stan, Vodice, 300 m do plaže.

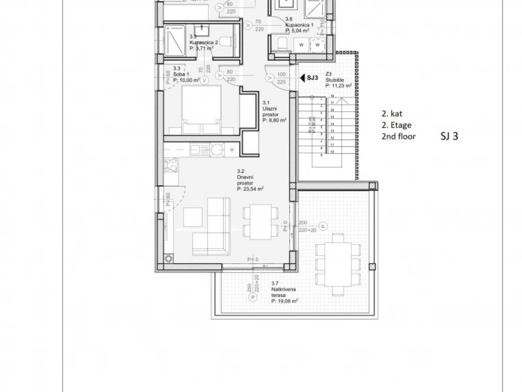
Stan se nalazi u Vodicama, na drugom katu novogradnje. Sastoji se od 3 spavaće sobe, 2 kupaonice, kuhinje-blagovaone-dnevnog boravka, hodnika i terase sa direktnim pogledom na more. Stanu pripada podrumsko spremište površine 9,61 m2 i 2 parkirna mjesta u ograđenom dvorištu.

Vrlo dobra lokacija, 300 m do mora i plaže.

Zgrada se sastoji od prizemlja i dva kata, ukupno 3 stana. Svi stanovi su opremljeni sa sistemom klimatizacije i podnim grijanjem, kvalitetnim vratima i prozorima sa elektro roletama i zaštitom od insekata. Podovi su obloženi kvalitetnim i modernim porculanskim pločicama.

Stanovi su spremni za useljenje.

ID CODE: MO-SJ3

Bilan nekretnine
Mob: +385 (0)98 266 440
Tel: +385 (0)98 266 440
E-mail: bilan.agencija@gmail.com
www.bilan-agencija.hr
Značajke
Vrsta
Stan | Puno vlasništvo
Ugovor
Prodaja
Kat
2
Katovi zgrade
3
Dizalo
Ne
Površina
89 m²
Prostorije
4
Spavaće sobe
3
Kupaonice
2
Balkon
Ne
Terasa
Da
Garažno mjesto, parkirna mjesta
2 na zajedničkom parkingu
Grijanje
Samostalno, zrak
Klimatizacija
Samostalno, hlađenje/grijanje
Detalji površine

Ostalo

Kat
2
Površina
89,0 m²
Koeficijent
100%
Vrsta površine
Glavni
Komercijalna površina
89,0 m²
Informacije o cijeni
Cijena
€ 360.000
Cijena po m²
4.045 €/m²
Energetska učinkovitost
  • Grijanje

    Samostalno, zrak
  • Klima uređaj

    Samostalno, hlađenje/grijanje
  • Energetski certifikat

    Neklasificirano
Tlocrt
Otkrijte svaki kutak nekretnine
+28
Dodatne mogućnosti

Obratite se oglašivaču

Ili