Trosobni stan Vodice, Vodice

€ 294.750
3
98 m²
1
PR
Ne
Terasa

Bilješka

Oglas ažuriran 22. 01. 2026.
Opis

referenca: 49

USELJIVA NOVOGRADNJA VODICE 3S VRT

Ova novogradnja predstavlja savršen spoj modernog dizajna, udobnosti i ekološke održivosti, a smještena je na prekrasnim Vodicama. S samo 6 stambenih jedinica, nudeći intimnost, idealna je za one koji traže mir i privatnost.

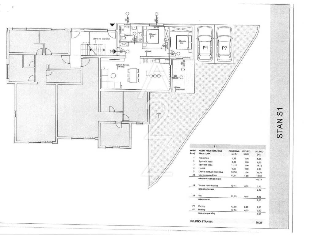
Stan S1 prostire se na ukupno 98,25 m², od čega je neto stambena kvadratura stana 82,75m2, nenatkrivena terasa 12,11 m², koja je savršeno mjesto za opuštanje i uživanje u mediteranskoj atmosferi. Na terasu se nastavlja vrt od 80,75 m2, idealan za mirise limuna, smokve i masline. Stan je u naravi trosobni stan koji se sastoji od hodnika, kupaonice, dvije spavaće sobe, open space dnevnog boravka, blagovaonice i kuhinje, a dodatno na ulazu je vanjsko spremište stana. Ovaj stan je jedini stan u zgradi koji ima zaseban ulaz koji ne dijeli sa ostalim stanarima pa pruža najveću privatnost. Opremljen je podnim grijanjem u kupaonici, što pruža dodatnu udobnost zimi, a klima uređaji u svim prostorijama osiguravaju ugodan boravak tijekom cijele godine.

Energetska učinkovitost zgrade je osigurana toplinskom fasadom debljine 10 cm, što smanjuje potrošnju energije. Sustav za obradu otpadnih voda putem bio jame dodatno potvrđuje ovu predanost okolišu. Udaljenost od mora je cca. 1300 metara, taman dovoljno da se pobjegne u mir od gradske gužve, i taman dovoljno blizu za ugodnu šetnju do plaže.

Ovoj stambenoj jedinici pripadaju 2 parkirna mjesta.

Stan je u sustavu PDV-a, kupac ne plaća porez na promet nekretnina. Stan je useljiv za ovu sezonu i trenutno je u završnim fazama radova. Požurite ugrabiti priliku u krasnom mediteranskom ambijentu, u Vodicama koje žive tijekom cijele godine, u novogradnji koja se odlikuje vrhunskom kvalitetom!

Posrednička naknada za kupca: 3%+PDV

Kontakt:
Ivana Zanjko Mađarić
0911788818
email: nekretnine@a2z.hr
https://nekretnine.a2z.hr/

ID CODE: 49

A2Z d.o.o.
Mob: 0911788818
Tel: 091 178 8818
E-mail: nekretnine@a2z.hr
nekretnine.a2z.hr
Značajke
Vrsta
Stan
Ugovor
Prodaja
Kat
Prizemlje
Katovi zgrade
1
Dizalo
Ne
Površina
98 m²
Prostorije
3
Spavaće sobe
2
Kupaonice
1
Balkon
Ne
Terasa
Da
Garažno mjesto, parkirna mjesta
2 na zajedničkom parkingu
Grijanje
Samostalno, zrak
Informacije o cijeni
Cijena
€ 294.750
Cijena po m²
3.008 €/m²
Energetska učinkovitost
  • Godina izgradnje

    2025
  • Grijanje

    Samostalno, zrak
  • Energetski certifikat

    Neklasificirano
Otkrijte svaki kutak nekretnine
+10
Dodatne mogućnosti

Obratite se oglašivaču

Ili