Trosobni stan Vodice, Vodice

€ 275.670
3
91 m²
1
PR
Ne
Terasa

Bilješka

Oglas ažuriran 22. 01. 2026.
Opis

referenca: 51

USELJIVA NOVOGRADNJA VODICE 3S VRT

Ova novogradnja predstavlja savršen spoj modernog dizajna, udobnosti i ekološke održivosti, a smještena je na prekrasnim Vodicama. S samo 6 stambenih jedinica, nudeći intimnost, idealna je za one koji traže mir i privatnost.

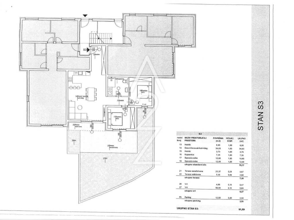
Stan S3 prostire se na ukupno 91,89 m², od čega je neto stambena kvadratura stana 75,77 m2, natkrivena terasa 5,35 m2 i nenatkrivena terasa 23,37 m², koja je savršeno mjesto za opuštanje i uživanje u mediteranskoj atmosferi. Na terasu se nastavlja vrt od 62,68 m2, idealan za mirise limuna, smokve i masline. Stan je u naravi trosobni stan koji se sastoji od hodnika, kupaonice, dvije spavaće sobe, open space dnevnog boravka, blagovaonice i kuhinje. Opremljen je podnim grijanjem u kupaonici, što pruža dodatnu udobnost zimi, a klima uređaji u svim prostorijama osiguravaju ugodan boravak tijekom cijele godine.

Energetska učinkovitost zgrade je osigurana toplinskom fasadom debljine 10 cm, što smanjuje potrošnju energije. Sustav za obradu otpadnih voda putem bio jame dodatno potvrđuje ovu predanost okolišu. Udaljenost od mora je cca. 1300 metara, taman dovoljno da se pobjegne u mir od gradske gužve, i taman dovoljno blizu za ugodnu šetnju do plaže.

Ovoj stambenoj jedinici pripadaju 1 natkriveno parkirno mjesto, tako da Vam je vozilo zaštićeno.

Stan je u sustavu PDV-a, kupac ne plaća porez na promet nekretnina. Stan je useljiv za ovu sezonu i trenutno je u završnim fazama radova. Požurite ugrabiti priliku u krasnom mediteranskom ambijentu, u Vodicama koje žive tijekom cijele godine, u novogradnji koja se odlikuje vrhunskom kvalitetom!

Posrednička naknada za kupca: 3%+PDV

Kontakt:
Ivana Zanjko Mađarić
0911788818
email: nekretnine@a2z.hr
https://nekretnine.a2z.hr/

ID CODE: 51

A2Z d.o.o.
Mob: 0911788818
Tel: 091 178 8818
E-mail: nekretnine@a2z.hr
nekretnine.a2z.hr
Značajke
Vrsta
Stan
Ugovor
Prodaja
Kat
Prizemlje
Katovi zgrade
1
Dizalo
Ne
Površina
91 m²
Prostorije
3
Spavaće sobe
2
Kupaonice
1
Balkon
Ne
Terasa
Da
Garažno mjesto, parkirna mjesta
1 na zajedničkom parkingu
Grijanje
Samostalno, zrak
Informacije o cijeni
Cijena
€ 275.670
Cijena po m²
3.029 €/m²
Energetska učinkovitost
  • Godina izgradnje

    2025
  • Grijanje

    Samostalno, zrak
  • Energetski certifikat

    Neklasificirano
Otkrijte svaki kutak nekretnine
+10
Dodatne mogućnosti

Obratite se oglašivaču

Ili