Višeobiteljska kuća Poreč, Červar-Porat - Veli Maj, Poreč

€ 598.000
4
125 m²
3
Ne
Terasa

Bilješka

Oglas ažuriran 28. 04. 2026.
Opis

referenca: 2079

Poreč novogradnja s bazenom i pogledom na more

POREČ

NOVOGRADNJA S POGLEDOM NA MORE – GOTOVA I USELJIVA KUĆA S BAZENOM

U mirnom, ali urbanom dijelu Poreča, svega 900 metara od mora i plaže, nalazi se moderna novogradnja vrhunske kvalitete poznatog istarskog investitora.
Projekt obuhvaća tri stana (75 m², 85 m² i 93,42 m²) te dvije kuće, od kojih jedna ima vlastiti bazen.

Lokacija je izuzetno atraktivna – centar i stari grad Poreča udaljeni su samo 2,5 kilometra, a do njih vodi uređena šetnica uz more.

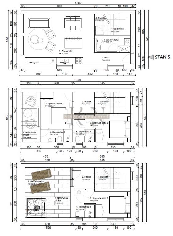
KUĆA 5

Površina kuće: 125 m²
Površina okućnice: 230 m²

Kuća se prostire na tri etaže i nudi savršen spoj modernog dizajna, komfora i prekrasnog pogleda na more.
Nekretnina je gotova, potpuno završena, spremna za useljenje i ima svu urednu dokumentaciju.

RASPORED PROSTORIJA

Prizemlje: ulazni hodnik, open space dnevni boravak s kuhinjom i blagovaonicom, toalet i vešeraj. Iz dnevnog boravka izlazi se na prostranu terasu s bazenom površine 24 m².
Prvi kat: dvije spavaće sobe s vlastitim kupaonicama (en suite), a jedna soba ima izlaz na terasu s pogledom na more.
Drugi kat: master spavaća soba s kupaonicom, prostorom za ugradbene ormare i velikom terasom s jacuzzijem te prekrasnim pogledom na more.

DODATNE ZNAČAJKE

Podno grijanje putem toplinske pumpe
Klima uređaji za grijanje i hlađenje
Vrhunski građevinski materijali
Pomno planiran i funkcionalan raspored prostora

CIJENA: 598.000 €

KONTAKT: Višnja Broqi
Mobitel / Viber / VhatsApp +385 91 2848 310

Obratite nam se s povjerenjem – vaš novi dom u Poreču čeka na vas.
Novogradnja s pogledom na more u Poreču – idealna prilika za život ili investiciju u Istri.

ID CODE: 2079

Višnja Broqi
Agent s licencom
Mob: +385 91 284 8310
Tel: +385 1 638 2643
E-mail: info@rina-nekretnine.hr
www.rina-nekretnine.hr
Značajke
Vrsta
Višeobiteljska kuća
Ugovor
Prodaja
Katovi zgrade
2
Dizalo
Ne
Površina
125 m²
Prostorije
4
Spavaće sobe
3
Kupaonice
3
Balkon
Ne
Terasa
Da
Garažno mjesto, parkirna mjesta
2 na zajedničkom parkingu
Klimatizacija
Samostalno, hlađenje/grijanje
Ostale karakteristike
  • Protuprovalna vrata
Informacije o cijeni
Cijena
€ 598.000
Cijena po m²
4.784 €/m²
Energetska učinkovitost

Potrošnja energije

A+

Tlocrt
Otkrijte svaki kutak nekretnine
+2
Dodatne mogućnosti

Obratite se oglašivaču

Ili