Trosobni stan Rovinj, Rovinj

€ 918.000
3
147 m²
2
PR
Ne
Terasa

Bilješka

Oglas ažuriran 22. 01. 2026.
Opis

referenca: 1002-49

Rovinj, moderni stan u prizemlju

Istra, Rovinj

U jednom od najljepših gradova Hrvatske obale, Rovinju prodajemo ovaj stan u prizemlju zgrade koja je u izgradnji, a planirani završetak radova je do kraja 2023. godine. Rovinj je grad kojeg ne trega posebno opisivati, to je grad za svakoga.

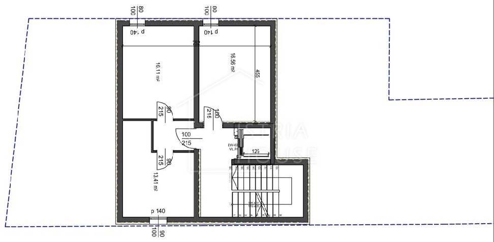
Ovaj stan od 143.73 m2 ima dvije spavaće sobe, svaka sa svojom kupaonicom te svojom garderobom. Blagavaona, dnevni boravak i kuhinja činit će jednu jedinstvenu cjelinu sa koje će se pružati pogled prema vrtu i terasi preko staklene stijene.

Stan se prodaje nenamješten, osim kupaonica koje će biti kompletno opremljene. S time da budući kupac ima mogućnost,ako mu se namještaj sa slika vizualizacije svidio, da mu se stan kompletno opremi sa identičnim namještajem koji je na slici.

Stanu pripadaju i dva parkirna mjesta te podrum 13,41 m2.
Zgrada u kojoj se stan gradi biti će opremljena najsuvremenijom tehnologijom:
Nosiva konstrukcija:
• temelji su armiranobetonske trake
• temeljna ploča je armiranobetonska
• zidovi podruma su armiranobetonski
• međukatne konstrukcije su armiranobetonske
• krovna konstrukcija je armiranobetonska
• nosivi zidovi su šuplji opečni termo blokovi 25-30 cm debljine
• pregradni zidovi su šuplji opečni blokovi 10-20 cm debljine
• nosivi stupovi i grede su armiranobetonski
• zidovi lifta su armiranobetonski 25 cm debljine

Vanjske obloge:
• ukopani zidovi podruma hidroizolirani katranskim folijama, termoizolirani XPS pločama 5 cm
• vanjski zidovi građevine termoizolirani EPS pločama 10 cm (veći dio) i 15 cm (manji dio)
• dio prizemlja je obložen dekorativnim kamenom
• ugrađena je kišna limarija - pocinčani bojani lim
• u krov je ugrađena termoizolacija 15 cm XPS ploče, te hidroizolacija
• pokrov građevine je mediteran crijep

Unutarnje obloge:
• zidovi se žbukaju strojnom žbukom
• zidovi kupaonica se oblažu keramičkim pločicama

Podovi:
• pod podruma je zaglađeni beton
• podovi stanova su keramičke obloge i parket
• podovi terasa su keramičke obloge
• stepenište je obloženo kamenom

Vrata i prozori:
• vanjski otvori su aluminijska bravarija Schüco
• unutarnja vrata u stanovima su drvena
• ulazna vrata za stanove su negoriva T-30 (vatrootporna i protuprovalna)
• u potkrovlju su ugrađeni krovni prozori Velux

Sustav grijanja i priprema tople vode:
• svaki stan posjeduje svoj depurator pitke vode
• ugrađen je sustav podnog grijanja
• stanovi se dodatno griju i hlade sa unutarnjim jedinicama ventilokonvektorima (fan coil)
• priprema tople vode vrši se u bojlerima smještenima u strojarnicu, bojleri su također spojeni na toplinske pumpe
• toplinske pumpe tvrtke Mitsubishi

Ostalo:
• zaštita od požara je osigurana unutarnjom i vanjskom hidrantskom mrežom, te prirodnom ventilacijom stubišta

Dizalo:
• dizalo tvrtke „Kone“

Ovaj luksuzni stan budućem kupcu će svojom modernom i najsuvremenijom opremljenošću pružitti ugodan i dug boravak u njemu. Nekretnina je pogodna za obiteljski život ili za bavljenje turizmom i iznajmljivanje.

ID CODE: 1002-49

Sandro Mitton
Agent s licencom
Mob: +385 915479886
E-mail: info@istria-house.com
www.istria-house.com
Značajke
Vrsta
Stan
Ugovor
Prodaja
Kat
Prizemlje
Dizalo
Ne
Površina
147 m²
Prostorije
3
Spavaće sobe
2
Kupaonice
2
Balkon
Ne
Terasa
Da
Garažno mjesto, parkirna mjesta
2 na zajedničkom parkingu
Klimatizacija
Samostalno, hlađenje/grijanje
Ostale karakteristike
  • Alarmni sustav
Informacije o cijeni
Cijena
€ 918.000
Cijena po m²
6.245 €/m²
Energetska učinkovitost
  • Godina izgradnje

    2023
  • Klima uređaj

    Samostalno, hlađenje/grijanje
  • Energetski certifikat

    Neklasificirano
Otkrijte svaki kutak nekretnine
+16
Dodatne mogućnosti

Obratite se oglašivaču

Ili